原木風
設計師:張偉 其他/125㎡
作者:弘藝裝飾發布時間:2019-06-04
項目名稱:幸福的港灣
房子所在地:景泰翰林F區
設計風格:簡約風格
項目面積:105平米
房屋戶型:兩室一廳一廚一衛
設計師姓名:季志強
設計公司:北京弘藝裝飾工程有限公司唐山分公司
主要材料:拋釉磚,墻漆,石英石等
工程費用:68500
業主信息:業主的家是古冶縣城的,買這套房子的原因是孩子過兩年該上學了,也打算以后定居在唐山了。對于他們來說,他們希望有一個溫馨的家,住在里面不會感到城市的喧嘩,更不會感到孤單,每天下班回家,能夠卸掉身上的疲憊和壓力。
業主小故事:因為平時上班比較忙,壓力也很大,沒有特別多的時間去考慮裝修這件事。然而裝修也是一件大事,通過朋友的介紹,找到了弘藝裝飾公司。第一次接觸的時候他們就跟我說:“我們不是對家的裝修不上心,而是真的太沒有時間,我們的要求也不是很復雜,想要一個簡單,明亮,溫馨的家”。

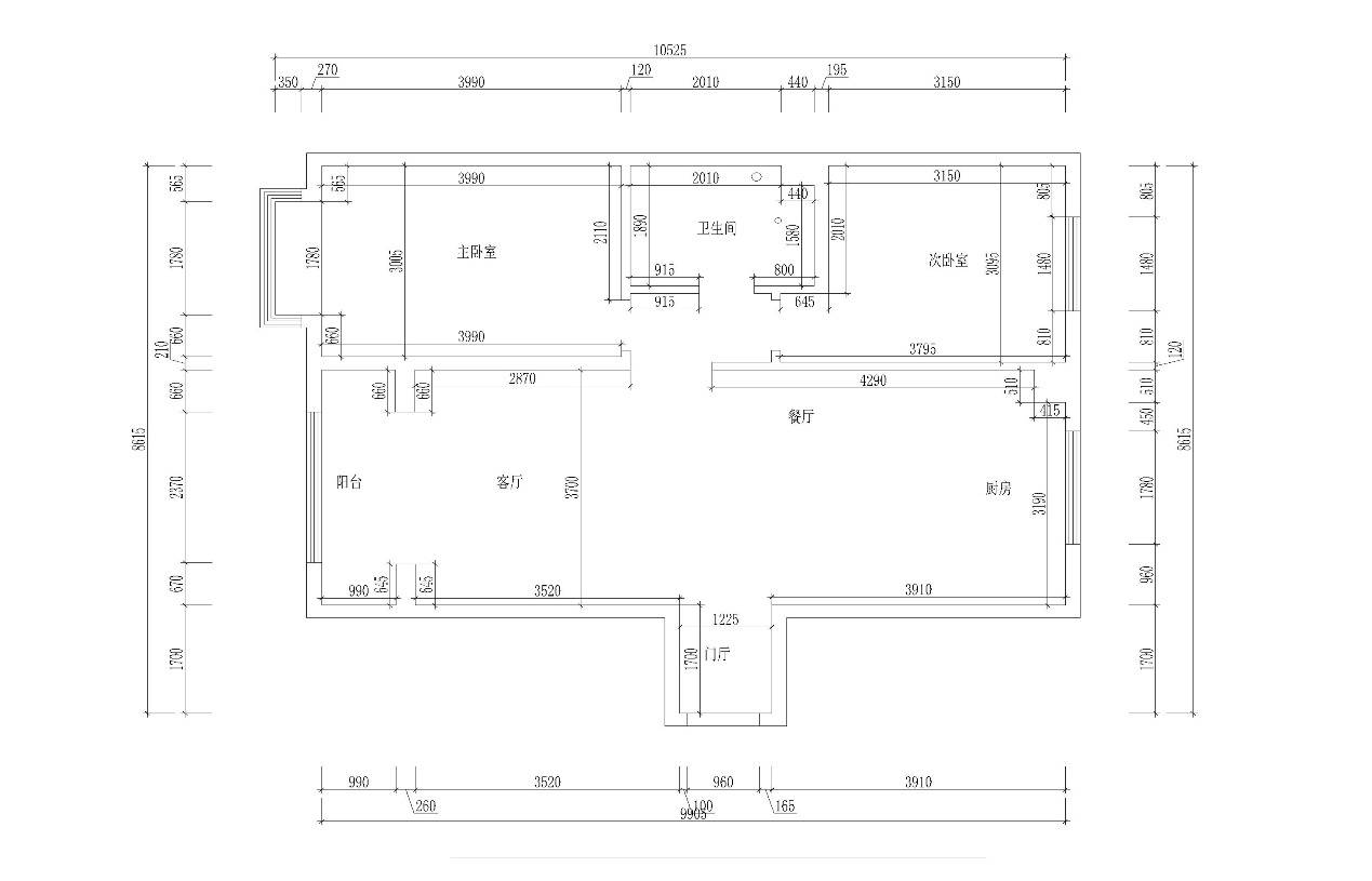
原始量房圖戶型分析:
此戶型為南北通戶型,通風性及好,采光很好。
餐廳與廚房空間劃分不明確。
儲物空間較少。

平面布置圖分析:1.客廳采光很好,且屬于南北通透戶型,只是餐廳和廚房沒有明確除兩個空間,既需要滿足廚房空間的利用,有需要保證餐廳的面積。2.儲物空間很少,入戶門的地方只能做個臨時鞋柜,其余的鞋考慮放到陽臺空間,小臥室考慮榻榻米增加儲物空間,餐廳
空間寬敞,考慮做儲物柜來增加整體的儲物空間。




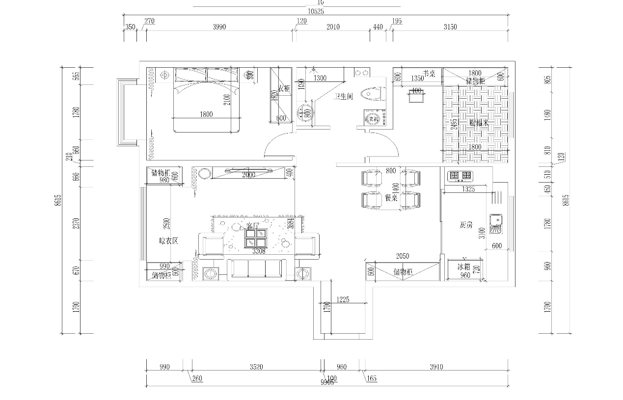
這套現代簡約的客廳設計以淺色為主色,再運用淡藍色的墻漆和米白色的沙發搭配,讓客廳充滿現代的氣息,十分的簡潔時尚。米白色的沙發搭配灰色的地磚和藍色的窗簾及淡藍色的墻漆,讓簡約的客廳充滿現代時尚溫馨的氣息,所以說現代簡約并不是過于強調簡約的設計,而是簡約和實用美觀的結合。

在臥室的設計上,要追求的是功能與形式的完美統一,優雅獨特,簡潔明快的設計風格。頂部是白色墻漆,墻面上是和客廳統一的淡藍色的墻漆,淺色的家具上深色的裝飾線條,使得整體設計簡單又帶有活力。在臥室設計的審美上,追求時尚而不浮躁,莊重典雅而不乏輕松浪漫的感覺。因此,在臥室的設計上,會更多的運用豐富的表現手法,使臥室看似簡單,實則韻味無窮

因為考慮到儲物空間及常住人口數量,考慮次臥室做了個榻榻米,榻榻米打破了垂直空間收納的慣例,內部柜子在水平地面也能發揮超強的儲物能力,是提升空間利用率的先行者。這樣既增加了整體的儲物空間又兼具寫字臺及書柜的空間。顏色上考慮用原木色和白色這兩種經典顏色做搭配,墻面搭配上孩子喜歡粉色。

此衛生間進門左手邊為浴室柜,進門就是手盆比較方便一些。花灑放到西南角,也是整體衛生間的一個最低點。雖然衛生間空間比較小,但是整個衛生間的功能并沒有減少,浴室柜的簡單儲物,洗衣機上方的空間利用,單獨的淋浴設計做到了干濕分區,使得衛生間充分的利用的空間。墻面采用300*600的大磚鋪貼,使得整個衛生間既簡約大方,又顯得空間沒有那么凌亂。

這個廚房屬于L型廚房,首先先說明下L形的廚房布局是什么,這是指所有的工作區沿兩面挨著的墻布置,水盆放到北側窗下,灶臺放在另一側,形成一個三角的操作空間,符合清洗、加工、烹飪的順序。
北京弘藝裝飾官網
裝修分期
設計師:張偉 其他/125㎡
設計師:邢志超 新古典/99㎡
設計師:張天任 現代簡約/103㎡
設計師:邢志超 現代簡約/140㎡
設計師:張偉 法式/138㎡
設計師:張志鵬 現代簡約/135㎡