原木風
設計師:張偉 其他/125㎡
作者:弘藝裝飾發布時間:2019-06-03
項目名稱:享
設計師姓名: 汪艷春
設計公司:北京弘藝裝飾唐山分公司
地點:榮盛御府
項目面積:105平米
主要材料:基礎工程加地磚,櫥柜,衛浴潔具,門等主材。
工程費用:69600元
業主基本信息:
房子是兩口人居住,房子是準備結婚用的婚房,客戶工作比較忙。由于工作的原因,平時沒有時間和精力去建材城自己買材料,所以選擇了一個靠譜的裝修公司,想工和料都包出去,只需要自己買家具和電器。這樣會更省心省力些。業主喜歡簡單溫馨的東西,所以在設計上要求明亮簡潔舒適。
業主小故事:
業主是兩口之家,平時由于工作原因沒有時間和精力自己采購材料,所以選擇了整包模式的裝修。女主人喜歡簡潔溫馨的感覺,業主和我說“我是一個特別喜歡簡潔的人,裝修要簡簡單單的東西,色彩要明快些。裝修完希望是她喜歡的樣子”

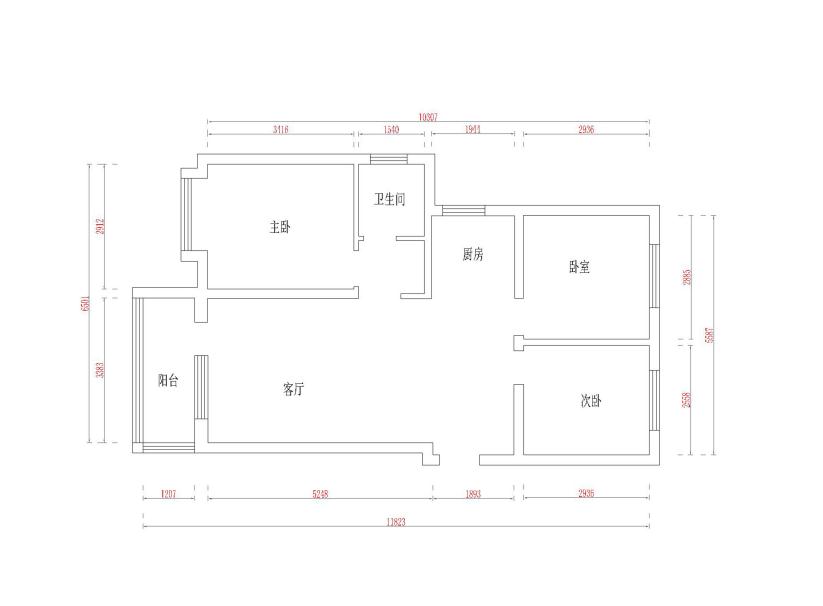
原圖分析:
該戶型比較規整,空間利用率很高,幾乎沒有浪費的空間。主臥,客廳,空間足夠大,采光性很好。
不足的地方:
1. 該戶型不足的地方是廚房和衛生間面積比較小
2. 次臥室面積偏小
平面分析:
1.由于該戶型廚房和衛生間面積不大,所以后期選購廚房和衛生間的瓷磚時最好選用淺色系瓷磚,這樣會在視覺上擴大空間感,同時廚房會顯得更干凈明亮。
2.由于次臥室偏小,考慮到以后的生活用品可能會越來越多,客戶還未買地下室,所以次臥室做了一個榻榻米的設計,榻榻米的儲藏功能非常強大,這樣更能把空間充分利用


由于業主喜歡簡簡單單的東西,年齡不是很大,所以在設計上拋去以前繁瑣的造型,用簡潔明快的線條勾勒出大體輪廓,顏色上采用清新明快的色彩搭配。從而使得整體空間更簡潔大氣明快。顏色搭配上選用深淺對比色,用彩色的墻漆來過渡調和。使得整體空間會顯得沉悶,所以家具選擇上用簡潔的造型和明亮的顏色搭配,使得整體空間更活躍。
由于背景墻面積不是很大,不適合做太復雜的造型。設計師用彩色的墻漆和簡潔的電視柜相搭配,這樣做出來的效果更簡潔大氣。頂部的石膏板線條與家具顏色呼應,從而使整個空間更具層次感。
臥室以溫馨舒適為主,顏色不宜太暗,要避免使用大面積深色以防止悶重的感覺。所以在臥室的配色上用淺色調來進行調和。床頭上配簡單裝飾畫來點綴,離開喧鬧的城市,回到自己溫馨的港灣,把工作中的一切煩惱的拋之腦后,靜靜享受屬于自己的這個時光。

衛生間的色彩搭配看起來很舒服,深淺搭配的浴室柜看起來更有質感,彩色墻磚搭配淺色潔具使整體空間更具層次感,顏色明快的色彩使得整體空間看上去不再單調。整個衛生間以業主的生活習慣為出發點,簡潔明快舒適并具有功能性。
【唐山弘藝裝飾】致力于唐山別墅設計,老房裝修,唐山家裝整裝,老房改造,上千平米材料展廳,上千款品牌主材供業主挑選,五星設計團隊、金牌項目經理、材料部、質檢部、客戶部、為每位業主保駕護航,體現完美服務,創造舒心家裝!
裝修分期
設計師:張偉 其他/125㎡
設計師:姚志杰 現代簡約/140㎡
設計師:邢志超 現代簡約/143㎡
設計師:程光 其他/155㎡
設計師:邢志超 其他/138㎡
設計師:張志鵬 現代簡約/135㎡