原木風
設計師:張偉 其他/125㎡
作者:弘藝裝飾發布時間:2019-06-04
項目名稱:《清清的茶》
設計師姓名:賈倩
設計公司:北京弘藝裝飾
地點:景泰翰林
項目面積:87㎡
主要材料:墻漆、拋釉磚、壁紙、中式線條、大理石、
工程費用:6萬
業主基本信息:
男主人是個領導,某私企領導,平時工作比較忙,沒有太多時間盯著裝修,甚至和家人在一起的時間都很少,所以他的要求一定是讓整個裝修看起來很溫暖。所以設計起來要求較高,色調上要求以暖色為準,因為工作太忙,所以想在裝修的新家上彌補家人一些遺憾;而女主人是在一個國企里面上班,平時工作比較空閑,有很多時間來照顧家庭和孩子,這個房子也是給老人和孩子買的。 孩子的奶奶平時接送接送孩子。
業主小故事:
在整個設計當中還是比較順利的,男主人雖然很忙,但是很愛自己的家庭,很珍惜自己現在來之不易的幸福。前期男主人找到我時,把自己的想法表達給我,說房子簡單大方就可以,老人一輩子操勞不容易,由于自己和太太工作的原因,又得讓老人接送孩子。雖然帶孩子辛苦,但是孩子也給老人帶去了無窮的樂趣。

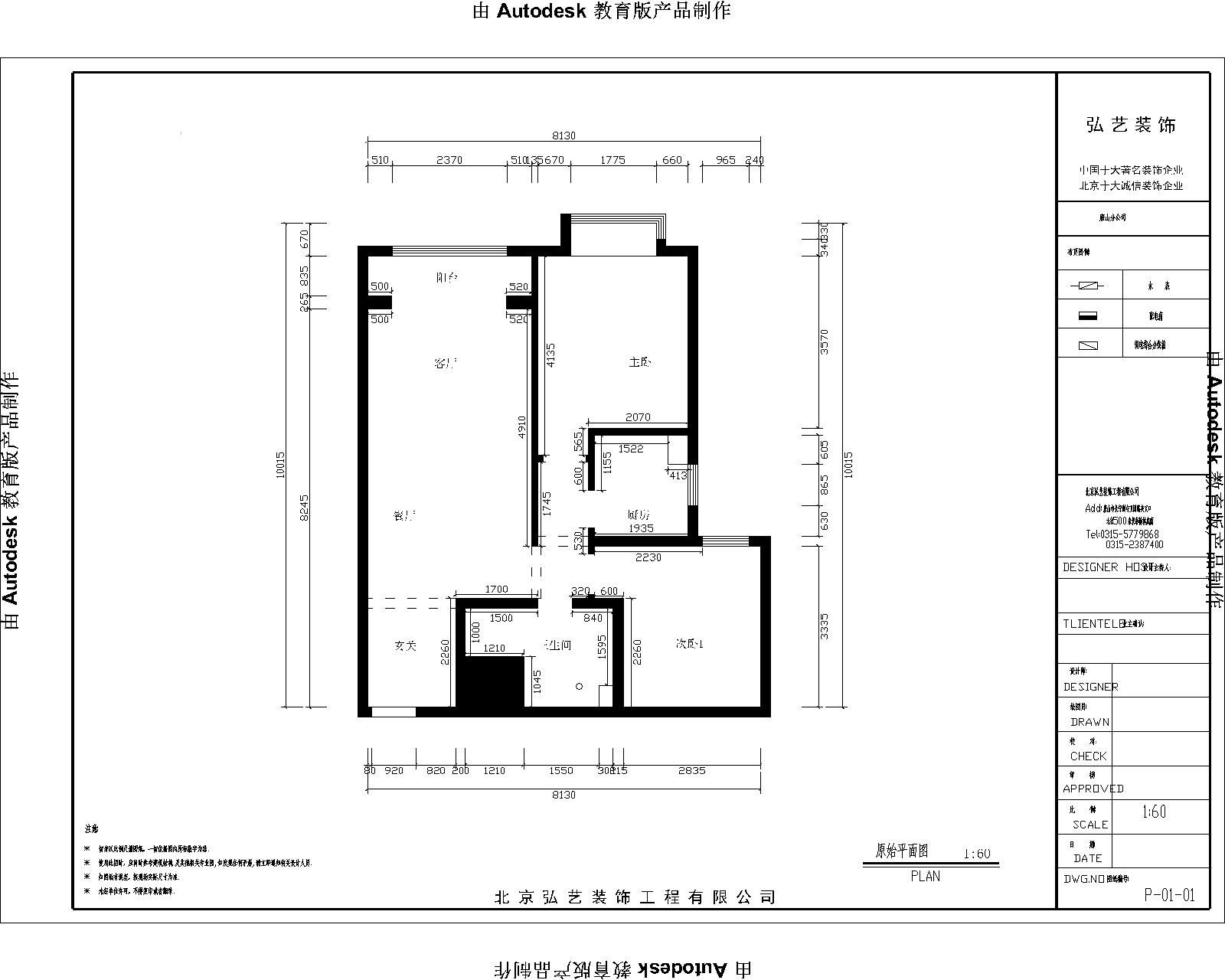
原始量房圖戶型分析:
1、此戶型白天采光充足,通風性良好。南北陽臺,生活方便。
2、客餐廳區域連在一起較大。
3、 此戶型拐角多,不是那么方正。

平面布置圖分析
此平面布局,按人體工程學,充分考慮客戶生活習慣,客餐廳連在一起,此戶型有充分改造的空間余地,廚房可以改造成U型廚房,冰箱位置可以預留出來了,小臥室用踏踏米,儲物空間非常大了,衛生間還有一個獨立的花灑空間洗澡空間獨立,非常好打理。


本次案例是一個87平米的戶型設計,風格定義為新中式,就是因為客戶的對家庭的熱愛,感染了我,我感覺一個男人難得在外面風雨打拼,特別累,壓力又很大的情況下還對親人,對家人保持著這種熱情和熱愛,所以我第一想法就是一定要給客戶一個溫暖的家。而新中式剛好能彰顯簡約,安靜,讓人能夠感受到內心的純凈,以及追求內心的簡單和自然的心理。所以房間全屋都用了純色溫馨的淡黃色壁紙,壁紙選擇的不是很亮的顏色,回到加厚會感覺一下子沉淀下來了,心里安靜了,電視背景墻選用中式線條,簡單整潔,大方大氣。

整個空間的色調為暖色系,整體給人感覺明亮而又恬靜,空間的色彩的調試沒有突兀的部分,色彩單一。比如空間和地面的對比,墻面和地板的色彩對比。色彩的選擇也是挑選的簡單、素雅為主的顏色,整體看起來就會溫馨。在淺色整體主調下,我們可以在一些特別的裝飾色彩可以用一些深色系列的,但整體色系最好搭配感強。 整體設計上給人帶來清爽明快之感,寬敞的空間布局讓人更加舒暢,單一的色調讓人就看不膩。空間布局、色彩用用、材質的選擇,都突出了簡約又大氣的風格。 新中式裝修風格中,餐廳采用暖色為主色調。

臥室為我們日常的休息場所,臥室在家中有著舉足輕重的地位,一間美式風格的臥室,更是讓人倍感溫馨雅致。便是如何利用新中式風格中的三種經典的元素,打造一個格調滿滿的臥室。床型采用純正的新中式風格設計,床頭是四邊形,加以優質的實木,造型簡約又不失格調,為整個臥室的新中式風格打下基礎。床體以優質桃花心木和芬蘭松木制成,木紋美觀,質地堅硬,而且讓床體具有很好的承重性,經久耐用。新中式臥室裝修設計上,主人是有很大的發言權的,因為這是主人專屬的領地,設計成什么樣才好,完全取決于主人的標準。在追求風格與實用性的選擇上,主人完全可以按照自己的想法打造,而不必拘泥于所謂形式

在設計次臥室床頭背景墻其實不用太過于復雜,一個好的臥室床頭背景墻設計是突顯品味的地方。但是相對來說次臥室可以弱化設計,一般都是作為兒童房,不必設計的太繁瑣,一般是做為客房,也沒必要設計的太復雜。設計的踏踏米儲物空間更多,針對兩室戶型踏踏米是一個非常不錯的戶型。
裝修分期
設計師:張偉 其他/125㎡
設計師:程光 其他/156㎡
設計師:孫天立 新中式/270㎡
設計師:邢志超 現代簡約/143㎡
設計師:張偉 法式/138㎡
設計師:張志鵬 現代簡約/135㎡