湖岸緹香140㎡現代輕奢實景
設計師:姚志杰 現代簡約/140㎡
作者:弘藝裝飾發布時間:2019-06-03
項目名稱:新生新居
設計師姓名:彭志遠
設計公司:北京弘藝裝飾唐山分公司
地點:路北區恒泰悅季
項目面積:112平米
主要材料:基礎工程加地磚、地板、櫥柜、衛浴潔具、門等主材。
工程費用:75000元
業主基本信息:
業主是一個單身的小伙子,從事金融行業,三十歲,性格非常穩重,又能緊跟時尚的潮流,是一個積極工作、懂得生活的好男人。業主人脈交際很廣,所以客廳的待客功能需求比較大,同時又比較自立,不靠家里父母支援,所以裝修預算不是很高,綜合下來,對我們設計師的要求比較高。
業主小故事:
業主工作比較迷茫,有時候需要把工作帶回家來做,所以要有一個學習辦公的地方,朋友們經常來家里喝茶做客,所以客廳不要太擁擠,要寬敞,亮堂。小伙子還比較喜歡烹飪,手藝棒棒的(這點跟我一樣,哈哈),所以廚房要實用,廚房儲物要充足。

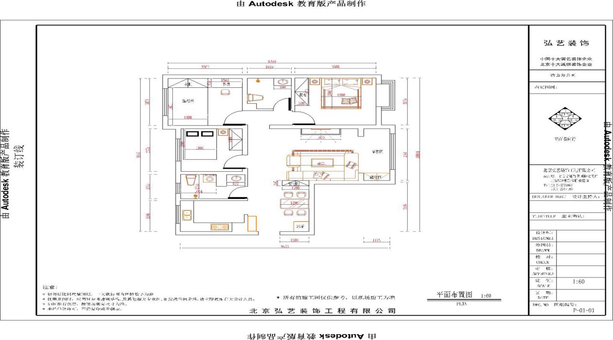
原圖分析:
112平米的戶型,在高層中能做到三室兩廳兩衛,也算是開發商的良心之作了。客衛還做成了干濕分離,更是給這個戶型做了不少的加分項,南面是主臥和客廳,采光也還不錯,美中不足就是餐廳的地方太暗,而且進廚房要先進衛生間的干區,所以后期裝修過程中進行了一些小的改動,把餐廳和客廳中間的這半面墻給打掉了,從廚房現有的門給堵上,從南面開一個門出來。

平面分析:
這樣布局以后呢,入戶門的北側放置鞋柜也足夠用,廚房和衛生間分開也比較方便,餐廳和客廳中間,把墻打掉了,放了一個鏤空的柜子,既增加了餐廳的采光,從視覺上也增加了餐廳的空間感,又能做餐邊柜使用,一舉多得。主臥對面的臥室做了一個榻榻米加書桌的布局,既增加了居家的儲物空間,又滿足了業主在家辦公的需求。

由于業主待客需求比較大,所以做一個漂亮的背景墻就勢在必行了,同時,由于業主預算有限,所以不能使用大理石等昂貴的材質。經過與業主的協商,我們采用的是石膏線造型加彩色漆的搭配來凸顯形象墻的地位,簡單時尚,經濟實惠。頂部沒有做復雜的石膏板吊頂,也沒有用傳統的石膏線,而是采用了12公分的石膏板線,大寬度板線造型能明顯增加空間的層次感,同事還不會造成空間的壓迫感。

由于將客廳與餐廳中間的那段墻給拆掉了,沙發墻就變的有些短,而是和邊上吊頂鏤空隔斷柜相結合,共同來做沙發背景,這樣一來,沙發背景既不適合做復雜的造型,也不適合懸掛大幅的掛畫,所以給客戶選擇了一塊現代文藝氣息比較濃重的單幅裝飾畫做以裝飾

北書房做了一個東西方向通長的榻榻米,衣柜和書桌在一條線上,整潔、方便、實用,北面兩個臥室的色系都做了調整,換成了冷色系,配上深色的木地板,是房間不會顯的太冷,而又富有質感。由于榻榻米衣柜的限制,書房的窗簾只能選擇單窗簾向開啟。

對于主臥室,配以了和客廳一樣的色系,配上一個現代風格的1.8米大雙人床,一組簡約的床頭裝飾畫,一定能給業主一個非常放松的休息的環境。而北側的通頂衣柜,大大的滿足了我們日常的儲物需求。最搶眼的就是南側的大飄窗,讀書、品茶、曬太陽、觀風景,都是美好的享受。

北面的小臥室是客房的設置,將來有了小寶寶以后,這里也會作為兒童房使用,所以床頭的裝飾畫就換成了一面照片墻,將來能記載寶寶的成長,和一家人每一滴的幸福時光。

整體櫥柜實用為主,地面、墻面與頂面都以淺色調為主,搭配上淺櫥柜門板,顯得干凈整潔。水盆、操作臺和灶臺保證了洗切炒的順序,方便我們日常使用,L形地柜+一字形吊柜,最大限度的增加了廚房的儲物空間。

客衛生間墻磚地磚的選擇和主衛是一樣的,浴室柜采用的是白色的臺上盆。客衛干濕分離的設計使空間足夠擺放洗衣機。為了安全保險起見,客衛和主衛一樣,選擇的都是鈦鎂合金材質的門,經久耐用,容易打理。
北京弘藝裝飾官網
裝修分期
設計師:姚志杰 現代簡約/140㎡
設計師:邢志超 新古典/99㎡
設計師:張天任 現代簡約/103㎡
設計師:邢志超 其他/138㎡
設計師:邢志超 現代簡約/140㎡
設計師:張志鵬 現代簡約/135㎡