輕法式復古的溫柔暴擊
設計師:張志鵬 法式/135㎡
作者:弘藝裝飾發布時間:2019-06-18
項目名稱:美式萬潤城
設計師姓名:夏會明
設計公司:北京弘藝裝飾唐山分公司
地點:萬潤城
項目面積:93平米
主要材料:基礎工程人工輔料,地磚,地板,門,櫥柜,衛浴潔具,鋁扣板,墻漆等主材。
工程費用:65000元
業主基本信息:
房子是三口人居住,業主要求造型不要太復雜,整體感覺以沉穩大氣不浮夸為主。現階段講究實用,整潔,多一些存儲空間。
業主小故事:
業主是三口之家,以前裝修過一套房子,是請的小公司裝修的,錢沒少花,心沒少操,質量卻糟的一塌糊涂。過了幾年出了些問題,再打售后電話的時候,裝飾公司拖延不解決,并且還逃避責任。有了這個經驗之后,所以這次裝修,業主決定找正規整修公司,綜合對比考慮之后最終選擇了咱們公司。

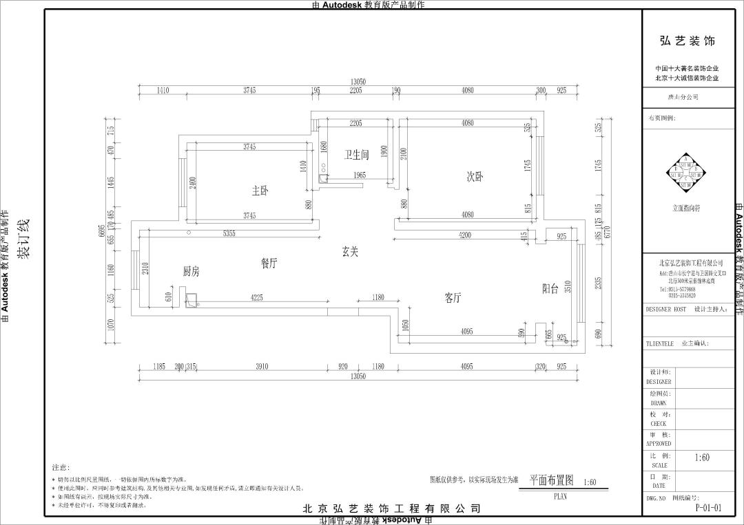
原圖分析:
該戶型臥室空間比較規整,南北通透,臥室,客廳和陽臺空間足夠用,采光性很好。
不足的地方:
廚房空間規劃不太合理,餐廳比較窄。
沒有獨立的鞋柜位置。

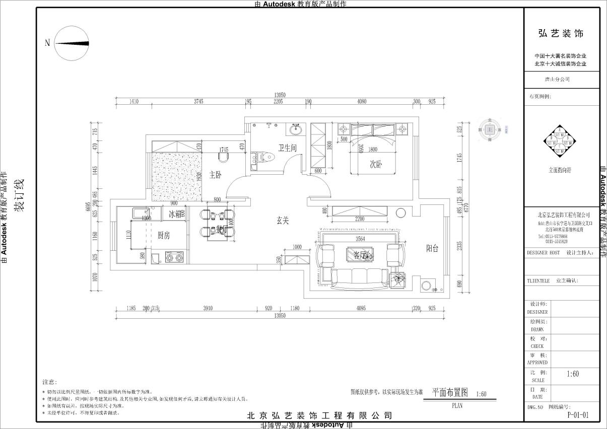
平面分析:
進門口右手邊可以放置鞋柜,沙發可以做成帶榻的或者3+2+1型的,客廳有下水位置可以放置洗衣機,考慮到以后的生活用品可能會越來越多,所以次臥室做了一個榻榻米的設計,榻榻米的儲藏功能非常強大,這樣更能把空間充分利用上。

進入了戶門,就可以欣賞到家居空間中對外的公共部分,客廳、餐廳都是為了招待來賓和宴請朋友用的。在材料選擇上傾向于較硬、光挺、華麗的材質。用太陽線框出來的電視和沙發背景墻,美觀,不單調,增加了層次感同時又降低了造假,提高性價比,非常實用。美式風格更注重歷史感,這不僅反映在軟裝擺件上對仿古藝術品的喜愛,同時也反映在裝修上對各種仿古墻地磚、古銅色金屬燈具的偏愛和各種仿舊工藝的追求上。總體而言,美式風格的客廳是寬敞而富有歷史氣息的,并且墻面滿刷藍灰色墻漆,與美式家具的原木色和燈具的古銅色更契合。

餐廳與廚房相連,廚房的面積較小,但好在能把廚房的陽臺擴進廚房內成為一體,使廚房空間增大,操作方便、功能性更強。這兩個區域連成一個大區域,成為家庭生活的重心...

臥室一般較客廳空間低矮平和,選材上也多取舒適、柔性、溫馨的材質組合,可以有效地建立起一種溫情暖意的家庭氛圍。臥室以溫馨舒適為主,素雅大方,淺色墻面配以木色,家具色調樣式足以體現主人的品位,在設計上床頭上的裝飾畫更是體現到了這一點,為房間注入了溫馨自然的格調,隨時都能保持一份心靈的寧靜,回歸內心深處。

兒童房色調風格以英倫風格為主,顏色選用藍色,非常適合小男孩居住和喜愛。步梯和下鋪床下有床箱也增加了存儲空間。兒童學習桌滿足了小孩的學習需求。臥室地面鋪地板,人們可以隨意的赤腳在上面行走,非常舒適,其軟硬適中的質地,腳感非常舒適。

整體櫥柜實用為主,地面、墻面與頂面都以淺色調為主,搭配上深色櫥柜門板,顯得穩重大氣。有容納雙開門冰箱的寬敞位置和足夠的操作臺面。在裝飾上也有很多講究,仿古面的墻磚、櫥具門板用模壓實木色門扇,突出沉穩大氣的裝修風格。
裝修分期
設計師:張志鵬 法式/135㎡
設計師:張偉 其他/125㎡
設計師:孫天立 新中式/270㎡
設計師:程光 其他/155㎡
設計師:邢志超 其他/138㎡
設計師:張志鵬 現代簡約/135㎡