簡約風無主燈,心安之處
設計師:邢志超 現代簡約/124㎡
作者:弘藝裝飾發布時間:2019-06-17
項目名稱:《理解》
設計師姓名:林曉芳
設計公司:北京弘藝裝飾
小區:景泰翰林
地點:美式風格
房屋戶型:三室兩廳兩衛一廚
項目面積:137㎡
工程費用:12.5萬
主要材料:墻漆、拋釉磚、烤漆木門 、衛浴、扣板、櫥柜
業主基本信息:
女主人是個普通職工,溫文爾雅,單位在唐山,男主人平時工作比較忙,沒有太多時間盯著裝修,女兒在國外讀書。這是浪漫的一家人,男主人女主人都很善良,為人和善。他們要的是一個溫馨,寧靜的家。
業主小故事:
匆忙的生活節奏,平凡的生活,他們是一對平凡再平凡不過的夫妻,早飯中飯午飯,上班下班,就是這種平凡的生活他們是幸福的,相互依偎,相互關懷,相互愛著彼此,生活是平凡的樂趣,是續寫的熱情。

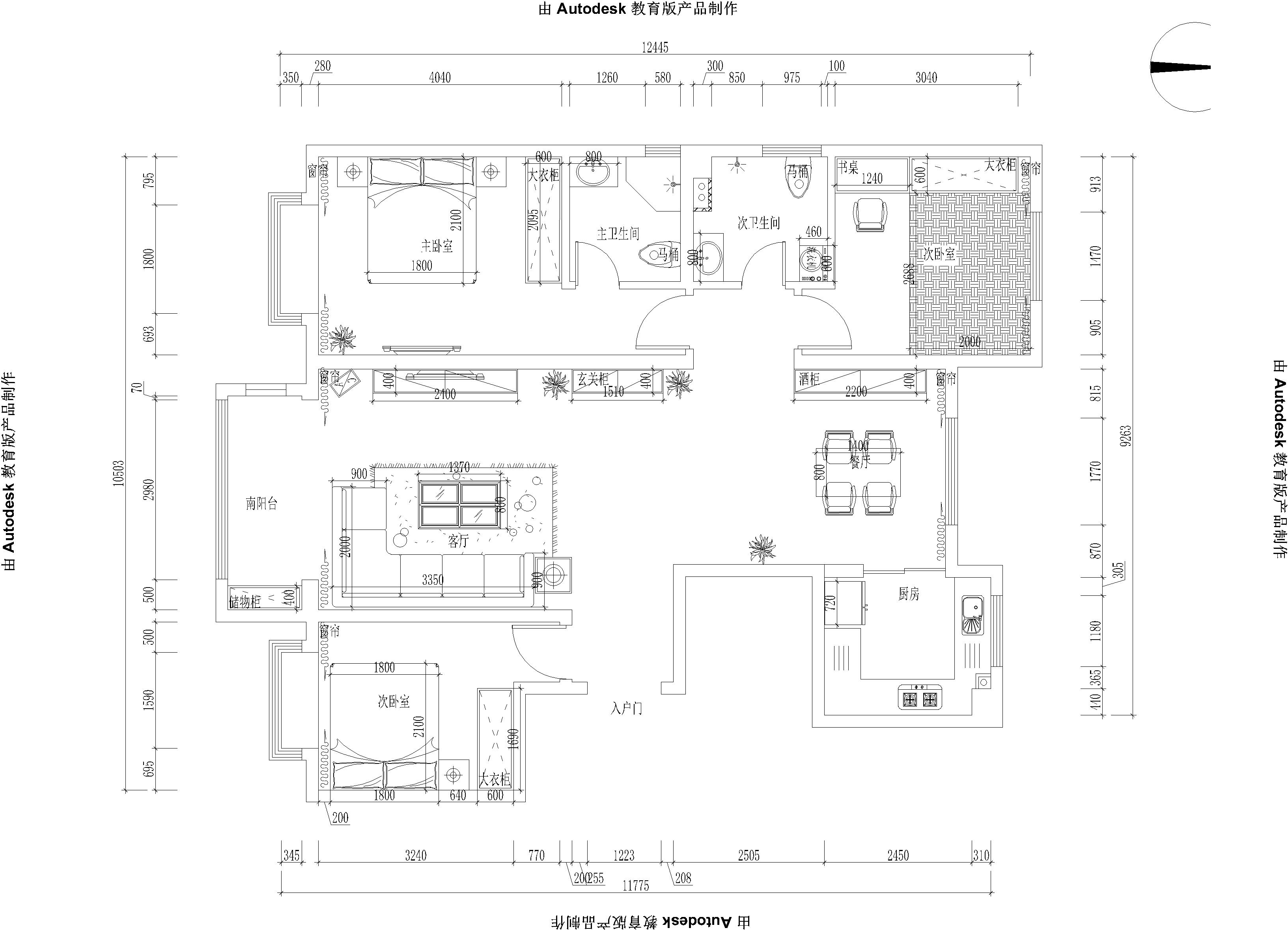
原始量房圖戶型分析:
1、 此戶型為南北通戶型,所有空間均帶窗子,白天采光充足,通風性及好。
2、 空間劃分明確。
3、 不足之處,空間整體格局有點零碎,但是每個獨立空間還是比較方正的。

平面布置圖分析:
入戶門口獨立的門廳,客廳、餐廳獨立而又寬敞的空間,南陽臺可做晾曬衣服的空間,接近大大的落地窗。主臥室寬敞明亮。次臥室在現有的空間滿足大衣柜書桌床的多重功能,北次臥室就是充當衣帽間和客房的作用了。根據人體工程學,通過簡單的空間邏輯,規劃每一寸空間充分發揮它的意義。







美式家裝風格以簡單、大氣而著稱,而美式風格又可分為傳統美式、簡約美式,不同的風格各有各的的特點,美式的家裝在房屋設計、家具打造、色彩處理和元素拼接上都力求簡單化,通過不拘一格的線條設計加簡潔單一的色調,給人們提供最爽朗、最清脆的住宅環境,以實用性為主,不過分強調華麗和奢華,不同的空間裝修的重點也各不相同,比如:客廳的設計一定要簡潔明快,凸顯大氣、舒適的特色。


在淺色整體主調下,我們可以在一些特別的裝飾色彩可以用一些深色系列的,但整體色系最好搭配感強。這款主臥布置非常的簡潔,以白色為主色,再配上古樸、大氣的木地板和大床,則能營造出自然、舒適的氣息。
裝修分期
設計師:邢志超 現代簡約/124㎡
設計師:程光 其他/156㎡
設計師:邢志超 現代簡約/143㎡
設計師:程光 其他/155㎡
設計師:邢志超 現代簡約/140㎡
設計師:張偉 法式/138㎡