輕法式復古的溫柔暴擊
設計師:張志鵬 法式/135㎡
作者:弘藝裝飾發布時間:2019-06-13
項目名稱:簡筆畫
設計師姓名: 汪艷春
設計公司:北京弘藝裝飾唐山分公司
地點:景泰翰林
項目面積:120平米
主要材料:基礎工程加地磚,櫥柜,衛浴潔具,門等主材。
工程費用:82890元
業主基本信息:
房子常住人口是三口人居住,偶爾有朋友可能暫住幾日。客戶喜歡簡單大氣的東西,所以裝修想簡單些。客戶工作比較忙。由于工作的原因,平時沒有時間和精力去建材城自己買材料,所以選擇了一個靠譜的裝修公司,想工和料都包出去,只需要自己買家具和電器。這樣會更省心省力些。業主喜歡簡單的東西,所以在設計上要求明亮簡潔舒適。
業主小故事:
業主是三口之家,平時由于工作原因沒有時間和精力自己采購材料,所以選擇了整包模式的裝修。女主人比較喜歡干凈明亮整潔的裝修效果,喜歡黑白灰色調簡潔大氣的感覺,所以設計師推薦現代簡約。業主和我說“我是一個很簡單的人,特別喜歡簡簡單單的東西,色彩不要太花哨,簡簡單單就好。裝修完希望是她喜歡的樣子”

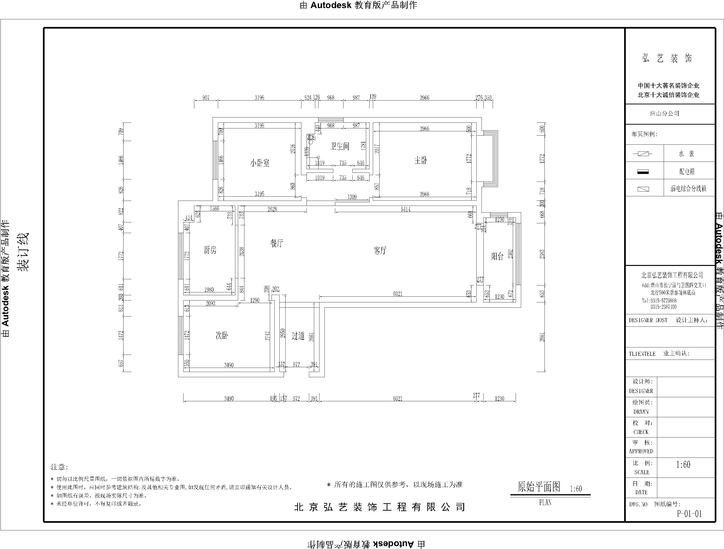
原圖分析:
該戶型空間比較規整,客廳和臥室空間足夠用,采光性很好。
不足的地方:
該戶型不足的地方是餐廳比較小,衛生間面積不算大。

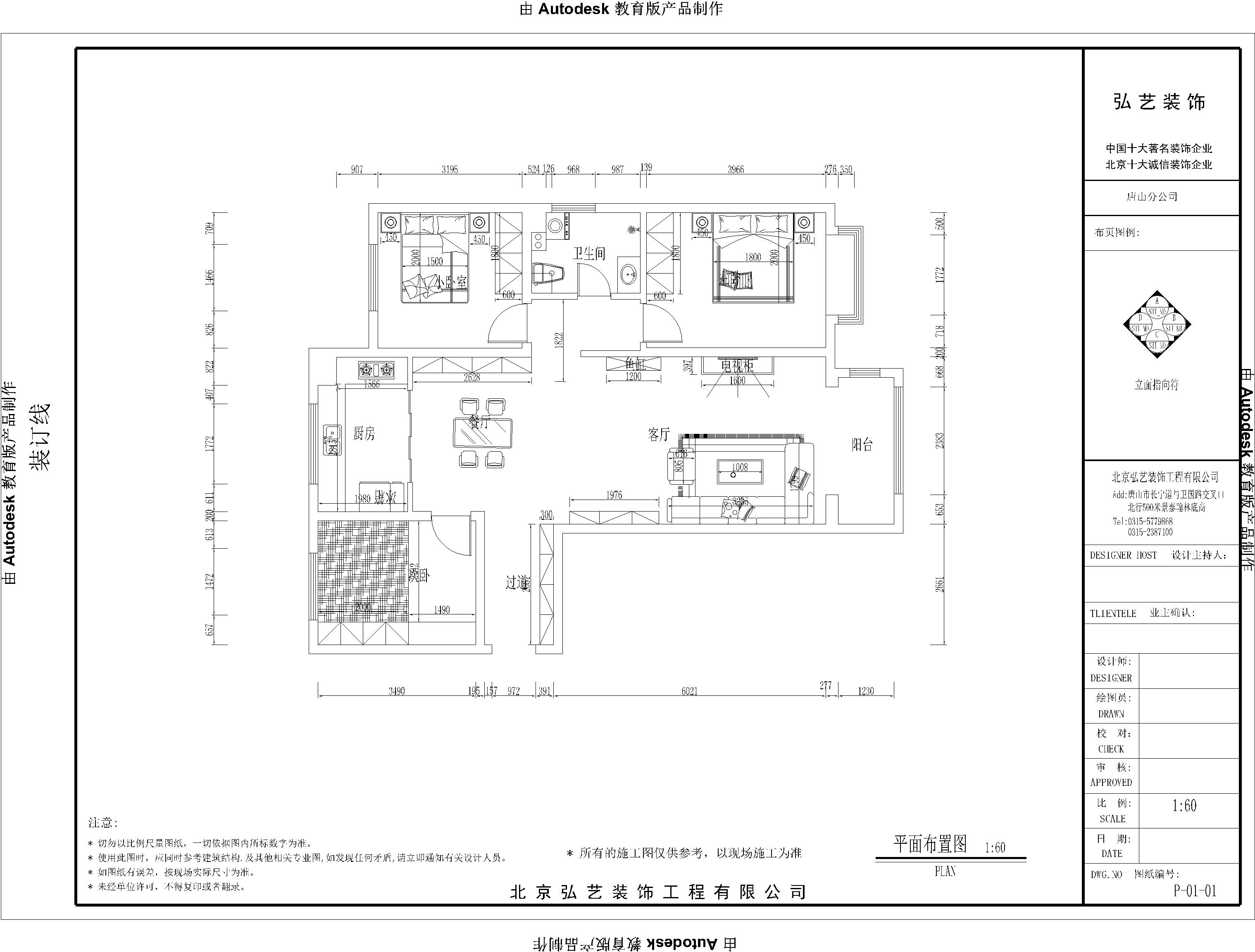
平面分析:
進門口右手邊可以放置一個鞋柜和衣柜一體的儲物柜來增加儲物空間,由于餐廳面積不大,房子中常住人口不多所以餐廳可以買小點的餐桌。考慮到以后的生活用品可能會越來越多,客戶還未買地下室,所以次臥室做了一個榻榻米的設計,榻榻米的儲藏功能非常強大,這樣更能把空間充分利用上。

本案例是一個120平米的普通住宅房,空間整體設計比較簡潔。給忙碌回家的主人一個寂靜安逸的空間好好休息,沒有了喧鬧與煩惱,就靜靜的在這個空間享受著家庭的溫馨。因為業主喜歡簡單而不缺功能性的裝修,所以硬裝比較簡單,大體的輪廓走向很明朗。在顏色搭配上使用了深淺對比色來突出房間的層次感。

由于客戶不喜歡太繁瑣的東西,設計師沒有把背景墻設計的比較簡潔明了。用簡易線條來勾勒大體輪廓,中間用瓷磚來陪襯,這樣做出來的效果更簡潔大氣方便打理。頂部的石膏板吊頂造型使空間更具層次感,簡單的裝飾與家具呼應,從而使整個空間更舒適和諧。

業主喜歡簡簡單單的東西,年齡不是很大,所以在設計上拋去以前繁瑣的造型,用簡潔明快的線條勾勒出大體輪廓,顏色上采用黑白灰搭配。從而使得整體空間更簡潔大氣明快。顏色搭配上選用深淺對比色,使得整體空間不會顯得沉悶,所以家具選擇上用簡潔的造型和明亮的顏色搭配,使得整體空間更活躍。

臥室以舒適實用為主,顏色不宜太暗,要避免使用大面積深色以防止悶重的感覺。所以在臥室的配色上用淺色調來進行調和。簡約風格講究對稱美,在設計上衣柜的分區更是體現到了這一點。離開喧鬧的城市,回到自己溫馨的港灣,把工作中的一切煩惱的拋之腦后,靜靜享受屬于自己的這個時光。

餐廳保留了較大活動空間,造型不多以簡潔為主,用簡潔的飾品做點綴,溫馨的色彩里多了一抹聲氣,讓整體空間多了一份家的味道。這樣的餐廳不顯擁擠,空閑時間夫妻倆一起下廚,做一桌豐盛的美食,叫上親朋好友分享著人間美味,說說笑笑歡聚一堂。

由于衛生間面積不大,所以衛生間選用淺色系的磚在視覺上顯得更寬闊明亮些。衛生間的色彩搭配看起來很干凈整潔,深淺搭配的浴室柜看起來更有質感,深淺色的對比使整體空間更具層次感,顏色明快的墻磚使得整體空間看上去更干凈明亮。整個衛生間以業主的生活習慣為出發點,簡潔明快舒適并具有功能性。
裝修分期
設計師:張志鵬 法式/135㎡
設計師:張天任 現代簡約/103㎡
設計師:邢志超 法式/130㎡
設計師:邢志超 現代簡約/143㎡
設計師:邢志超 其他/138㎡
設計師:張志鵬 現代簡約/135㎡