簡約風無主燈,心安之處
設計師:邢志超 現代簡約/124㎡
作者:弘藝裝飾發布時間:2019-06-13
項目名稱:《簡》
設計師姓名:賈倩
設計公司:北京弘藝裝飾
地點:萬潤城
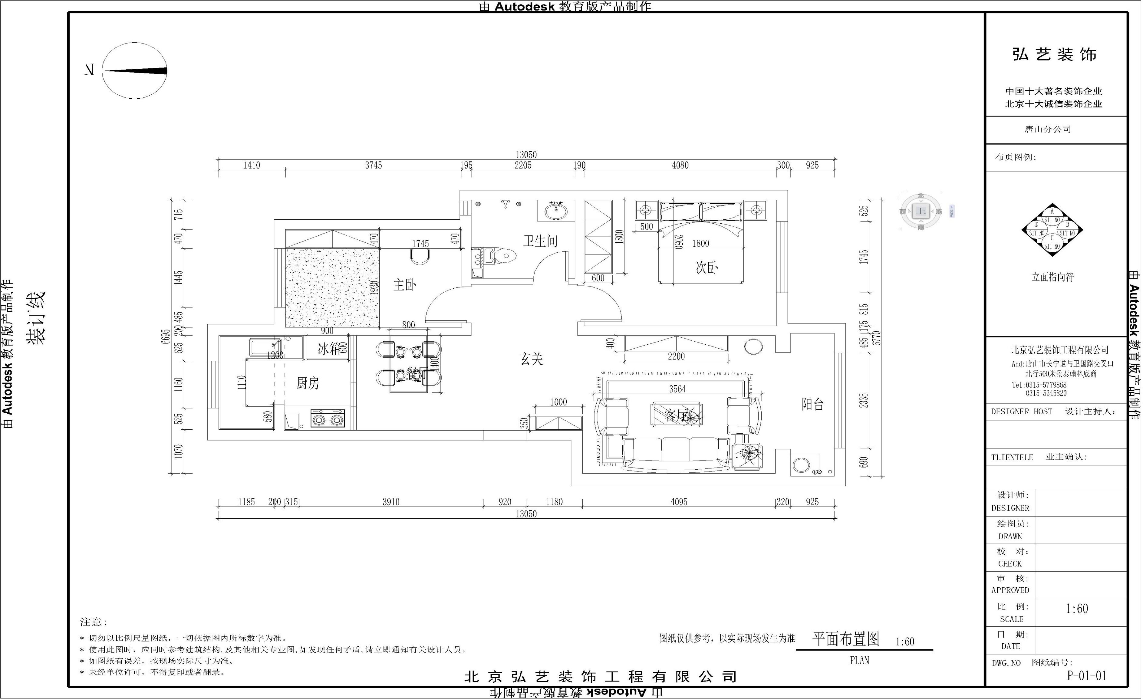
項目面積:93㎡
主要材料:木飾面,瓷磚,木地板,涂料,壁紙
工程費用7萬
業主基本信息:
70后夫妻,追求簡約,喜歡安靜舒適的壞境,自己住,孩子在天津上學 ,每周會回來住,客戶的第二套房子,喜歡簡潔舒適環境,要求不要太復雜,要求隱蔽工程做好就行。男主人也在天津上班,對于細節方面還是比較追求品質的。女主人是小學老師,脾氣特別好,就是在選材上有些小糾結,猶豫不定,但最終還是完成了整個作品的設計,客戶對裝修方案也很滿意。

本次案例是一個93平米的戶型設計,風格定義為現代風格,客廳主要以灰白為主基調,印花地毯、灰色的布藝沙發、裝飾,打造出一個簡潔精致的待客空間。后現代主義的概念至今沒有一個確切的定義,這是由后現代主義的多元性和復雜性決定的。不確定性是后現代主義的根本特征之一,這一概念具有多重含義。后現代主義對當代人的精神沖擊是全方位的,在思維理論論層面上可以肯定后現代主義的批判否定精神和異質多樣的文化意向,后現代主義室內設計只有在其"異樣事物"中,才會獲得自身的規定和理念。

1.空間常規布局,戶型規整,南北通透。
2.空間整體協調性不錯,布局合理。
3.采光較好。

平面布置圖分析
1.空間常規布局,儲物空間及整體設計上更重要。
2.客廳區域設計的很簡潔,生活更愜意。
3.房子設計需求很高,主要還是追求品質和舒適性的。
4.家庭的簡約不只是說裝修,還反映在家居配飾上的簡約,比如不大的屋子,就沒有必要為了顯得"闊綽"而購置體積較大的物品。
5.以不占面積、折疊、多功能等性能為主。


客廳廳在現代中也是相當重要的一部分,后現代風格是對現代風格中純理性主義傾向的批判,后現代風格強調建筑及室內裝潢應具有歷史的延續性,但又不拘泥于傳統的邏輯思維方式,探索創新造型手法, 講究人情味,常在室內設置夸張、變形的柱式和斷裂的拱券,或把古典構件的抽象形式以新的手法組合在一起,即采用非傳統的混合、疊加、錯位、裂變等手法和象 征、隱喻等手段。大量使用鐵制 構件,將玻璃、瓷磚等新工藝,以及鐵藝制品、陶藝制品等綜合運用于室內。注意室內外溝通,竭力給室內裝飾藝術引入新意。

餐廳的設計室內空間開敞、內外通透,任何一種觀念、主義都不是孤立地存在的,都有它產生、發展的生存土壤。后現代主義設計也是如此,是西方工業文明發展到一定階段的衍生物,是歷史的必然在特定的文化環境、物質條件下的反映,我們可以從后現代主義設計思潮的社會文化背景中尋求它的根源。由曲線和非對稱線條構成,如花梗、花蕾、葡萄藤、昆蟲翅膀以及自然界各種優美、波狀的形體圖案 等,體現再墻面、欄桿、窗欞和家具等裝飾上。線條有的柔美雅致,有的遒勁而富于節奏感,整個立體形式都與有條不紊的、有節奏的曲線融為一體


臥室以灰色系作為主基調,除卻簡單的家具擺設,無過多的裝飾物,為主人打造一個簡潔舒適的休息空間。勞累了一天,回到家中,呆在溫馨且浪漫的臥室里,瞬間心情放松下來了。裝飾幾乎是后現代設計的一個最為典型的特征,這是后現代主義反對現代主義、國際風格的最有力的武器,主張采用裝飾手法來達到視覺上的豐富,提倡滿足心理需求而不僅僅是單調的功能主義中心。后現代主義對現代主義全然屏棄的古典主義異常關注,他們不搞純粹的復古主義,而是將各種歷史主義的動機和設計中的一些手法和細節作為一種隱喻的詞匯,采用折衷主義的處理手法,開創了裝飾主義的新階段。后現代主義的裝飾風格體現了對于文化的極大的包容性,這里即包括傳統文化,也包含現行的通俗文化:古代希臘、羅馬、中世紀的歌德式藝術、文藝復興、巴洛克、洛可可以及20世紀的新藝術運動、裝飾藝術運動、波普藝術、卡通藝術等等任何一種藝術風格。運用的手法更是不拘一格:借用、變形、夸張、綜合甚至是戲謔或嘲諷。漢斯·霍萊恩設計的瑪麗蓮沙發就綜合了古羅馬、波普藝術和裝飾藝術運動的風格特征。
裝修分期
設計師:邢志超 現代簡約/124㎡
設計師:邢志超 法式/130㎡
設計師:邢志超 現代簡約/143㎡
設計師:程光 其他/155㎡
設計師:邢志超 其他/138㎡
設計師:邢志超 現代簡約/140㎡