簡約風無主燈,心安之處
設計師:邢志超 現代簡約/124㎡
作者:弘藝裝飾發布時間:2019-06-07
項目名稱 《其樂融融》
設計風格 簡約美式
地點:景泰翰林F區
項目面積 73平米
戶型 兩室一廳
設計師 張志鵬
設計公司 北京弘藝裝飾(唐山分公司)
主要材料 墻漆 石膏板 石膏線 拋釉磚
工程費用 46000元
業主信息 業主剛剛買的房子,是一對很有生活品味的年輕夫婦,對設計很有自己的想法和追求,對空間色彩搭配很重視,并且合理利用空間,不喜歡特別復雜花式的裝修風格,喜歡簡單而又溫馨的居家氛圍。
業主的小故事 行走于都市中,你看起來和多數人并無明顯區別。你不慌不張、不疾不徐,不喧囂、不張揚、不另類、不閃耀,但干凈而得體;你不追求特立獨行,不渴望出類拔萃,你只是一步步、腳踏實地的為心中的美好生活而奮斗。你身上一定有某種色彩,能夠將你和其他人區隔開來。因為你從未放棄理想的生活,你愿意在力所能及的范圍內,靠近更美的一切。

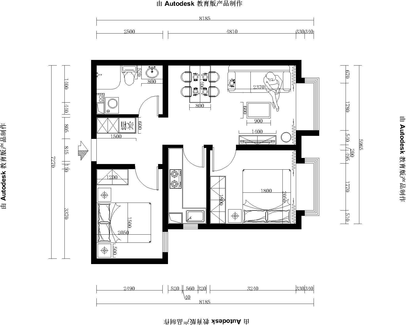
原始圖分析:本方戶型為兩室一廳雙陽面戶型,客餐廳一體式的戶型,客廳和主臥室都有一個大大的飄窗,便于休閑和觀景,廚房屬于細長型結構,但不適合把冰箱考慮在里面,衛生間空間比較大能夠合理擺放潔具。

平面布置圖分析:進門左手邊是一個鞋柜直接到頂起到很好的收納作用且冰箱與之融為一體,冰箱離廚房距離也是非常短,使用上也是非常的方便,餐廳和客廳區域融為一體,廚房是L型柜子,主臥室放正常尺寸的雙人床和大衣柜保證充足的儲物空間,次臥室也比較寬敞擺放床頭柜和衣柜,充分利用了空間。


設計理念:每一個陽光燦爛的日子,客廳都是一家人流連的場所,平面上最大可能的解決浪費的起居空間面積,淺色系的客廳,于背景墻處透過柔和的光線,完美彰顯藝術色彩,在同一個空間里不同形體的家具共同存在于一個自然色系里,相得益彰,各自生輝。為業主營造一個美滿舒適的居家之所,餐廳是一家人齊聚的時刻,在這里有歡聲笑語,有意見商議,有酒后飯余后的心靈溝通,溫馨柔和的燈光,一切顯得那么和諧!


主臥的整體色彩仍以主人喜愛的色調為主,配以深色家具,烘托出舒適、靜謐、放松的心境。米色棉麻材質被子,最大可能應用與自然貼近的顏色與元素,創造舒適自在的生活方式。透視感,空間之間可以互相共享,增加空間層次。留有充裕的儲物空間,可以隨心安置私人物品。加上點小裝飾畫的點綴,顯得整體柔美,這樣回到家以后就可以身心放松!

廚房櫥柜整體色調為淺色調與其他空間家具的整體色調形成一個反差,整體定制櫥柜搭配淺色系的墻地磚整體感覺更加清爽,地面地磚是延續客餐廳整體鋪過來的,這樣就避免小地磚縫隙多存雜物的問題,廚房整體空間比較狹長 ,櫥柜也是做的L型櫥柜,配的吸塑材質的門板,并且因為廚房空間不是很寬敞所以沒有把冰箱考慮在此空間,這樣整個廚房的整體櫥柜完全可以滿足業主的儲物及操控空間。讓我們為你打造屬于你的個性美居。。。
裝修分期
設計師:邢志超 現代簡約/124㎡
設計師:邢志超 新古典/99㎡
設計師:邢志超 法式/130㎡
設計師:程光 其他/155㎡
設計師:邢志超 其他/138㎡
設計師:張志鵬 現代簡約/135㎡