原木風
設計師:張偉 其他/125㎡
作者:弘藝裝飾發布時間:2019-06-07
項目名稱:《現代》
設計師姓名:楊奇
設計公司:北京弘藝裝飾
地點:景泰翰林F區
項目面積:87
主要材料:墻漆、瓷磚、石膏線、地板
工程費用:6萬
業主基本信息:
男業主是網絡管理員,女業主是醫生,生活節奏比較快,喜歡淺顏色的物品,希望在設計中多用淺灰色,不喜歡傳統身顏色還要顯現出輕奢的氛圍和溫馨的感覺,在淺色系里做出一個屬于他們自己的溫暖的小家,生活很幸福。
業主小故事:
男業主平時工作不是很忙,但是為人做事非常有原則,記得印象最深的一件事是這樣,客戶一早來看裝修公司,但是一直沒找到合適的裝修公司與設計師,而且裝修公司經常給他打電話已經很煩躁了,到了晚上來到我公司由我接待了他們,但是通過詳細的交談后,我的設計想法理念很符合客戶要求也是客戶喜歡的,客戶說也去過的裝修公司把自己的想法告知設計師但是沒有一個人能理解他的要求想法,但是與我交流后只是簡短的意思就明確客戶想要的把每個細節表現形式說出來,感覺把自己想要的卻表達不出來的感覺被設計師一言道破,談完設計后看了報價和材料就定了下來。

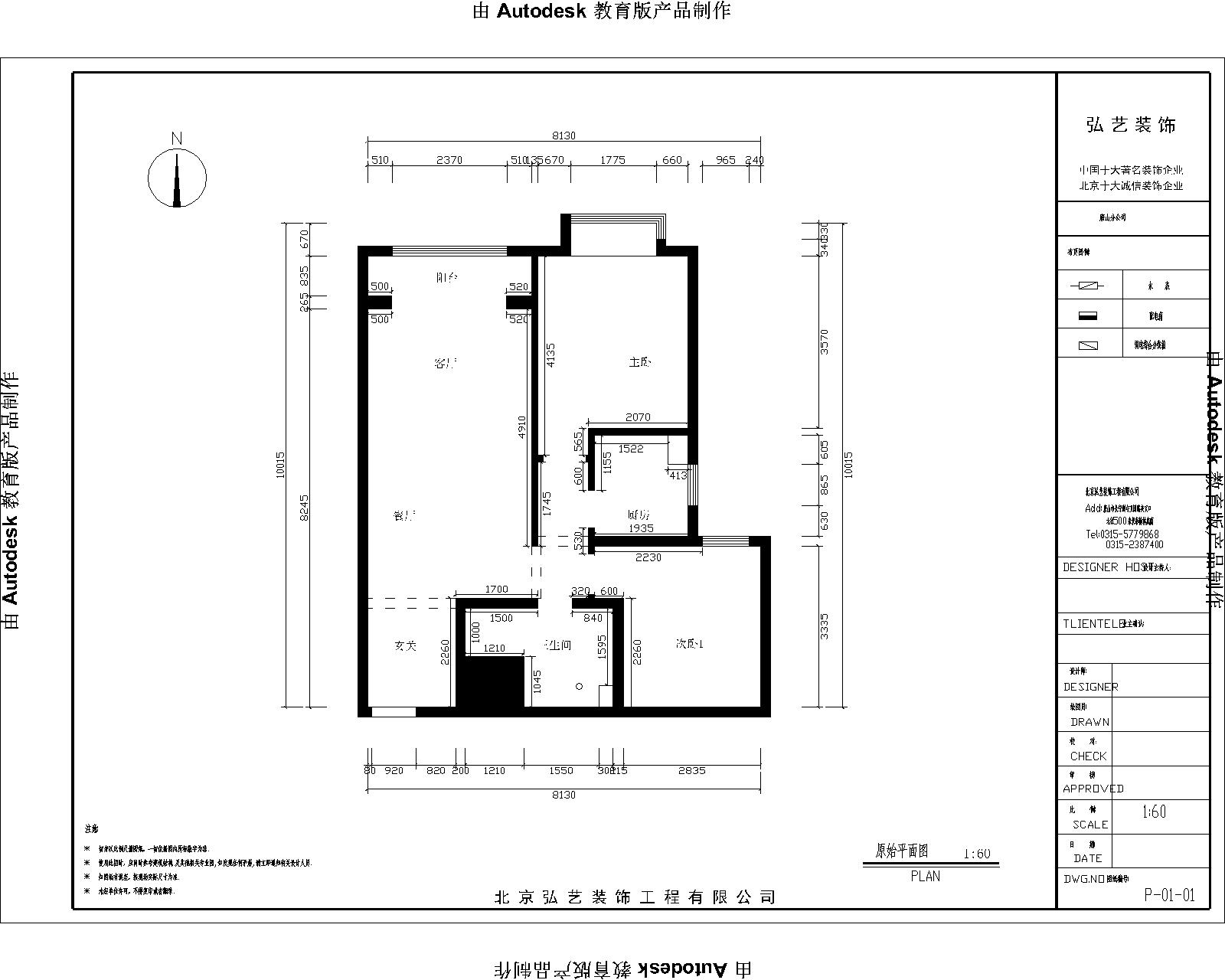
原始量房圖戶型分析:
1、此戶型為朝南戶型,雖然采光通風很好,但是客餐廳整體來說挺大, 餐廳比較小,位置有限,顯得很擁擠。
2、衛生間面積不大,空間相對來說比較擁擠。
3、主臥面積雖然不算小,但是空間布局受限制。

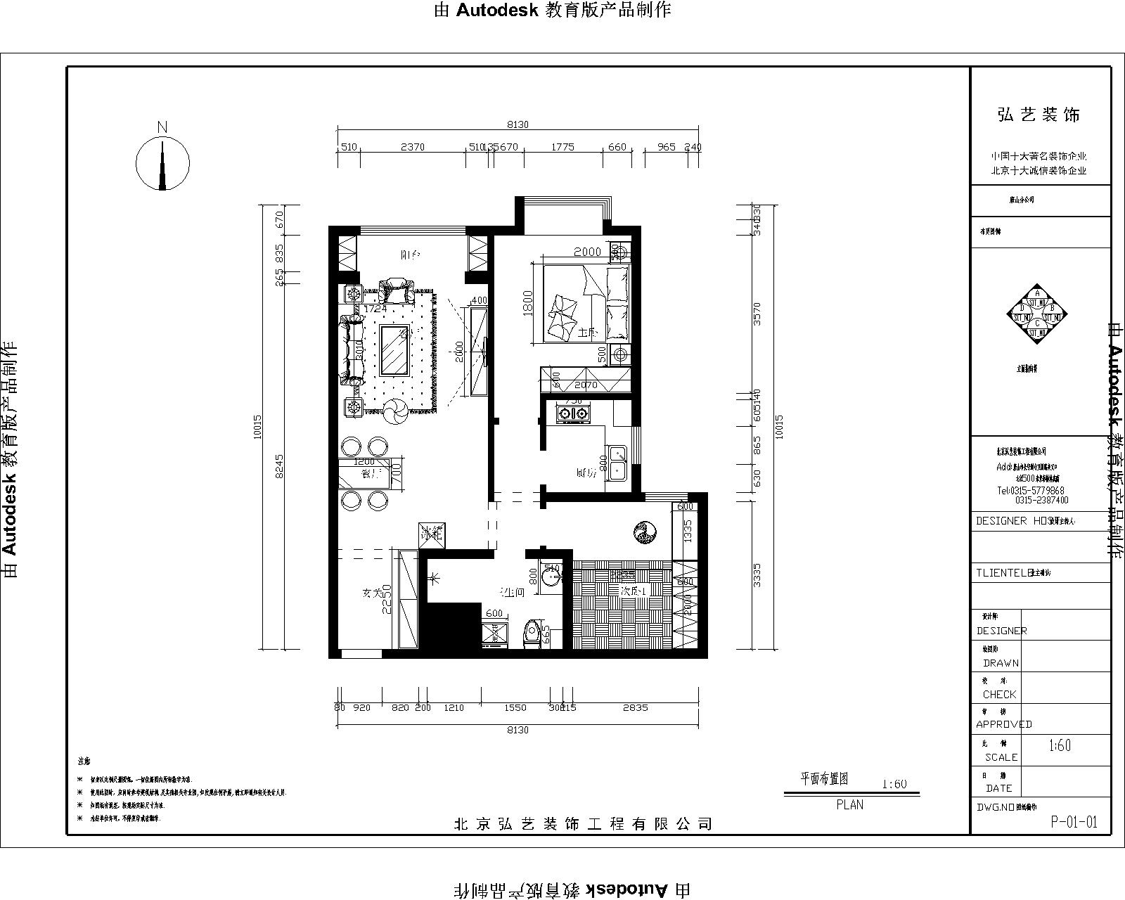
平面布置圖分析
1:客餐廳由于面積算很大,所以在色彩搭配上盡量選用統一的顏色色這樣布局很容易出效果,還會由于空間比較明亮,還會使室內空間顯得很大,產生一種視覺錯覺。以及在后期家具選擇上有更好的選擇,功能性很強,這樣的話就不會擺完家具后不會顯得小或者擁擠,反而會更有效果。
2:主臥室的墻面顏色和家具顏色也是以淺色為主,由于空間不算小,在考慮多個方案后,感覺還是把衣柜放到了床對面的那面墻,這樣的話不僅空間布局合理,而且滿足的功能更多,能增加更多的儲物空間。
3:衛生間面積小,但是還要分出主次。


本次案例是一個87平米的戶型設計,客廳的落地窗滿足了客餐廳的采光性與通風性,而對于業主來說,這套溫馨的港灣是業主多年的向往,在本案中整體色系也是采用一種比較安靜素雅的顏色,整體給人一種安靜,放松的感覺,仿佛當業主拖著一身疲憊的身體推開門的一剎那,感覺來到了屬于自己內心的世界,無論外面多么嘈雜,多么冷漠,好像都和自己無關

整個空間的色調為淺色系,因為淺色的色彩可以使人緊張的神經系統和視覺神經得到很好的放松和舒緩壓力,客餐廳頂部做了些石膏板線,很好的突出了現代簡約風格的線條感,既有層次,又簡單大氣,還不愛過時;背景墻采用墻漆顏色簡單明快,下面的電視柜是木質柜臺面,這樣下來色彩與材質都一樣,才能保證效果,也突出了色差與層次的重要性與吸人眼球的效果,屢試不爽。


主臥,次臥室面積不算小,在墻漆顏色上與客廳不同,采用比較溫馨的暖白色,這個顏色既有保護眼睛的作用,又可以增加人的睡眠質量,是很慵懶的一個顏色,效果也不非常好,這是經過多次的實踐證明。在空間布局上,把大衣柜放嵌入式的墻體里面更加節省空間,這樣不僅使得衣柜能過做到最大化,增加儲物,有使室內活動區域很寬松,不擁擠,也很溫馨,是目前大多數年輕人的選擇,深色的地板更加襯托出家具配上的高檔。

衛生間采用米黃色的墻地磚,因為這個磚也是淺色系,鋪完之后整體很高檔,因為衛生間本身就是要保持干凈的空間,建議是采用色調比較淺的瓷磚,這樣的話整體效果較好而且好打理,衛生間是接近正方形,所以洗衣機與浴室柜對面放也沒有問題,空間利用更合理,淺色版的墻磚,層次感更強。

廚房與餐廳空間采光也很理想,此時在選擇瓷磚與櫥柜顏色也是需要色彩比較淺,淺色櫥柜表面與比較明亮的瓷片磚形成鮮明對比,這樣的話會顯示出廚房的整潔,此外也要注重實用與儲物空間,對于大多數業主來說,廚房的儲物空間似乎都沒有夠過,隨著時間的推移,鍋碗瓢盆跟衣服一樣,越來越多,空間越來越擁擠,所以再做廚房設計的時候盡量注重盡可能加大廚房的儲物空間。
| 請輸入您的稱呼 |
| 請輸入您的手機號碼 |
| 輸入裝修面積 |
| 選擇裝修風格 |
裝修分期
設計師:張偉 其他/125㎡
設計師:姚志杰 現代簡約/140㎡
設計師:孫天立 新中式/270㎡
設計師:邢志超 現代簡約/140㎡
設計師:張偉 法式/138㎡
設計師:張志鵬 現代簡約/135㎡