輕法式復古的溫柔暴擊
設計師:張志鵬 法式/135㎡
作者:弘藝裝飾發布時間:2019-06-06
項目名稱:《我喜歡~》
設計師姓名:夏會明
設計公司:北京弘藝裝飾
小區:景泰翰林
風格:北歐風格
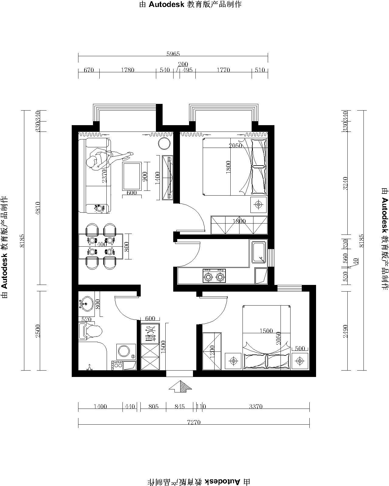
房屋戶型:兩室兩廳一衛一廚
項目面積:73㎡
工程費用:4.8萬
主要材料:德國進口墻漆、歐神諾諾拋釉磚、惠達衛浴、櫥柜、圣象地板、實木復合門
業主基本信息:
這是一家剛迎來新生命的小夫妻,夫妻倆都是工薪階層,比較注重環保和質量,夫妻倆沒有太多時間盯著裝修,要求找一個比較規矩有規模化的大公司比較放心,所以選擇了弘藝,這是浪漫的一家人,男主人女主人都很善良,為人和善。

原始量房圖戶型分析:
1、此戶型為雙陽面戶型,所有空間均帶窗子,白天采光充足,通風性很好。
2、空間劃分明確。
3、不足之處,空間整體格局有點緊湊,但是每個獨立空間還是比較方正的。

平面布置圖分析:
客廳、餐廳是獨立而又寬敞的空間,主臥室寬敞明亮。次臥室在現有的空間滿足大衣柜、床的功能,根據人體工程學,通過簡單的空間邏輯,規劃每一寸空間充分發揮它的意義。



客廳上由于電視背景墻比較小,同時還要放置立式空調的原因,在設計上本著化繁為簡的原則,舍棄了背景墻的設計。因為空間的限制,無論做什么類型的背景墻,都會顯得局促和擁擠,會顯得很小氣。同理,頂面沒有做壓低頂面空間感的吊頂,而是做了石膏線,來美化墻頂面的交界線,同時整體色調上以淺色為主,鮮艷活潑的顏色作為點綴,突出年輕人使整個空間顯得明亮大氣。
小衛浴間選用了深淺搭配的色調,讓整個空間明朗、整潔。衛生間設計應該以實用大方、安全方便、易于清潔、美觀簡潔為主,衛生間會長期和水打交道,因此內部裝修應該做好防水措施,浴室的墻壁和地面應該選擇防水防潮耐腐蝕的優質材料,整體應該給人一種明亮簡潔的感覺,避免過度的繁瑣設計,給人一種累贅感。衛生間的色彩選擇具有清潔感的冷色調,并與同色調的搭配,低彩度、高明度的色彩為佳。對于潔具,追求合理、合適的潔具。浴室裝飾要講究實用,考慮衛生用具和裝飾的整體效果。 北歐風格廚房設計特點,盡可能不用裝飾和取消多余的東西,強調形式應更多地服務于功能。小戶型的廚房里除了保存最基本的貯藏、洗刷、烹飪等功能外,盡量較少一些不常用同時又占空間的電器。
臥室的設計,強調功能性設計,線條簡約流暢,色彩對比強烈,這是北歐風格家具的特點。幾何線條修飾,色彩明快跳躍,外立面簡潔流暢,由于線條簡單、裝飾元素北歐風格家具需要完美的軟裝配合,軟裝到位是風格裝飾的關鍵。家中的聲色不在于多,在于調配。不管房間多大,一定要顯得寬闊。不需要繁瑣的裝修和過多家私,在裝修與安置中最大極限的表現空間與家私的全體調和。外型方面多選用幾何構造,這就是北歐主義時髦個性。過多的色彩會給人以亂七八糟的感受,在個性中多運用一些純潔的色彩進行調配,這么不管家私外型和空間布局,才會給人耳目一新的驚喜。

裝修分期
設計師:張志鵬 法式/135㎡
設計師:張偉 其他/125㎡
設計師:程光 其他/156㎡
設計師:邢志超 現代簡約/143㎡
設計師:程光 其他/155㎡
設計師:邢志超 現代簡約/140㎡