宋氏美學案例分享
設計師:程光 其他/156㎡
作者:弘藝裝飾發布時間:2019-06-06
項目名稱:《花漾年華》
設計師姓名:劉瑞芹
設計公司:北京弘藝裝飾
地點:景泰翰林
項目面積:87㎡
主要材料:墻漆、拋釉磚、太陽線、大理石、文化石、
工程費用:6.5萬
業主基本信息:
此戶型為年輕小兩口居住,平時小兩口在外面工作很忙,沒有時間操持裝修,家里有個可愛的的男寶寶,夫妻兩個比較喜歡美式裝修風格,喜歡美式的大氣,但是不想家里裝修出來太老氣。
業主小故事:
隨著人們生活節奏加快,如今很多樓盤有一些精裝修的房子,方便人們直接拎包入住。但我們屋主是一個對生活充滿熱愛,對自己的未來也是有要求的,當初和業主溝通方案的時候他的寶寶才剛出生不久,當時我腦海里就閃現過了這句話,如今經過一年是運作總算可以交付一個結果了。業主的寶寶也很可愛,開始咿呀學語了,希望是每一個美好結果的萌發之處,或是事物向上發展的轉折之點,不僅業主有,我也有!他希望有一個優美且心儀的環境,而我的希望則是能盡力實現他的愿望!

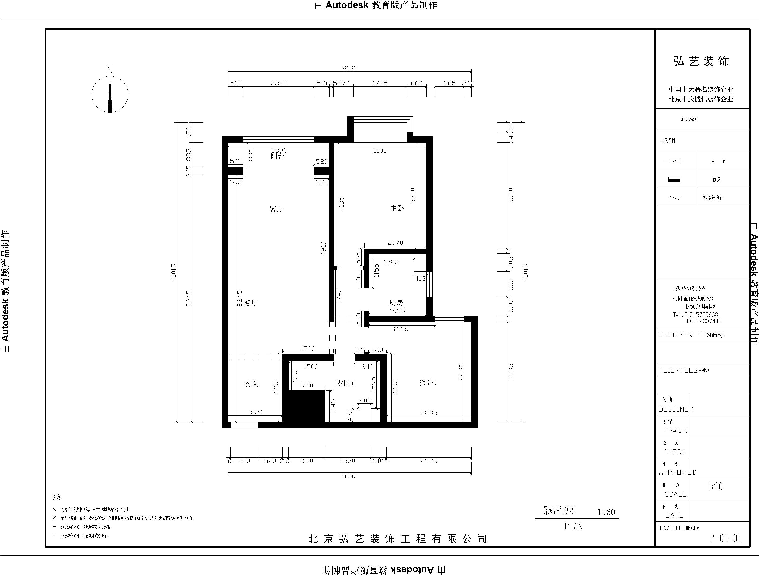
原始量房圖戶型分析:
1、此戶型未為雙陽面戶型,白天采光充足,通風性良好。南陽臺,生活方便。
2、客餐廳區域較小,中廳區域較大。
3、 此戶型因為為雙陽面戶型,夏季通風效果會差一些。

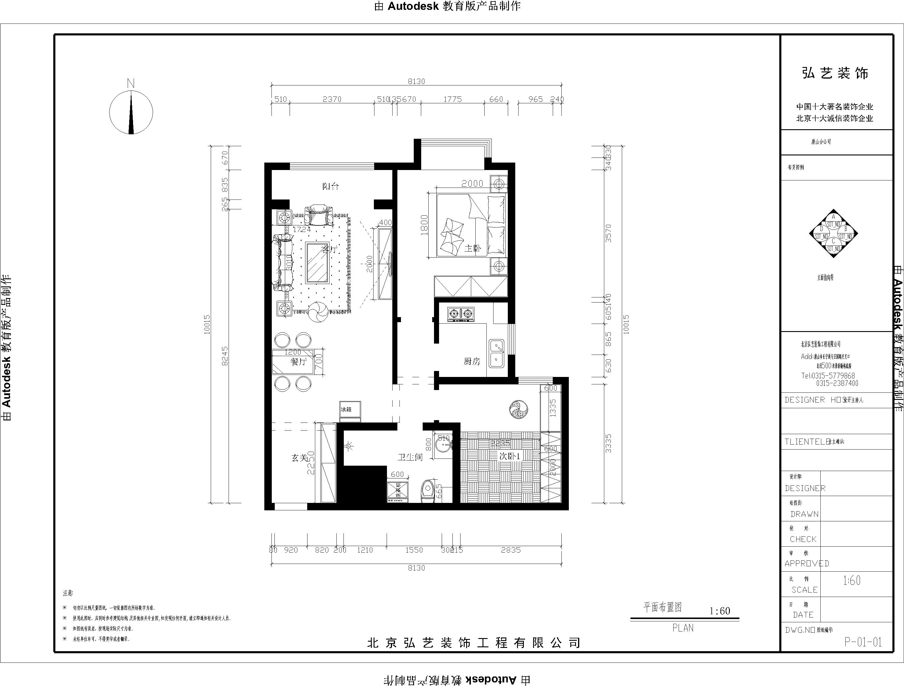
平面布置圖分析
此平面布局,按人體工程學,充分考慮客戶生活習慣,一進門右手邊做為一個通體鞋柜,增加家里的儲物空間,此戶型為幸福的三口之家,由于孩子現在還比較小,玩具比較多,所以此戶型最先考慮的應該儲物空間陽臺放一個通頂的壁柜,增加家里的實用性,陽臺也可以作為一個儲物空間,平時可以上上網沒看看書,比較安靜的空間,一進門入戶的位置為餐廳的位置餐廳位置比較狹小,所以建議餐桌放個小一點的折疊桌或者是四人餐桌。


設計風格時,不僅要讓空間本身充滿想象,同時營造出的氛圍能感染周圍的每一個人。本案作品將復古和摩登兩種元素結合,打造輕奢美式氛圍,給予繁忙的生活里增加幾許小資的個人時光。
本案例是美式風格設計空間時,不僅要讓空間本身充滿想象,同時營造出的氛圍能感染周圍每一個人運用簡約簡潔的設計手法強調室內空間形態的單一性、抽象性。大量運用純色,突出色彩的跳躍,大膽而靈活,不僅是對風格的遵循,也是個性的展示。簡約不等于簡單,經過深思熟慮后經過創新得出的設計和思路的延展,不是簡單的“堆砌”和平淡的“擺放”。在家具配置上,白亮光系列家具,獨特的光澤使家具倍感時尚,具有舒適與美觀并存的享受。在配飾上,延續了黑白灰的主色調,以簡潔的造型、完美的細節營造時尚前衛的感覺。

睡床是沿著窗戶擺設,兩邊預留阿足夠的走動空間,墻面粉刷肉色的墻漆與地面地板顏色相近,看起來甚是和諧。床品采用美式深色高背床,增加臥室的舒適感,配上深灰色的床品床頭兩邊金屬材質的臺燈凸顯了整個空間的大氣感,床旁邊有一個大大通頂的衣柜增加了整個屋子的儲物空間,臥室一進門的位置頂面做了個平面吊頂,減弱了臥室的刀把形狀 現代住所的開展,小家庭的組成,大家心理上的需求,期望臥室具有私密性、蔽光 性,配套洗浴,靜謐舒服,與住所內其他房間分隔開來。我規劃的臥室除了主臥加了個內衛外,再者除了擺放雙人床外,留有必定的面積擺放臥室家私,如衣柜,電視柜,床頭柜,還留有必定空間能夠休閑活動


次臥室為兒童房,主人孩子現在還比較小,整體色調以藍色為主,整體清新自然,次臥選用了一個非常有趣的壁紙運用了很多的復古元素,打造了一個溫馨且有層次感的臥室空間,整體沒有過多的復雜裝飾,為業主提供的簡單的睡眠空間。

很多時候,由于房間戶型設計的局限性,衛生間的面積比較狹小,但科學合理的設計,可以讓衛生間看起來明亮寬敞且使用,雖然衛生間狹小但是不要忽略衛生間這個小地方,他關系著全家人的健康以及生活質量,衛生間設計要注意防水,防潮,通風,美觀和易清潔同樣重要,衛生間里面采用懸空式浴室柜,這樣比較好清潔大理,馬桶后面加上花片點綴,為整個衛生間增添了活力。

整體廚房采用的是純灰色的亞光磚,櫥柜門選擇和家具顏色一至的吸塑櫥柜,和墻磚形成非常鮮明的對比黑白經典搭配,看起來干凈利索,整潔,雖然第一眼不會給人很驚艷的感覺,但是越看越耐看,墻壁上的柜子使整個廚房干凈整潔,在這樣的廚房里面烹飪,給人一種很安靜的感覺,在這樣的廚房里面烹飪給人一種很舒適的感覺,做出來的飯菜也一樣美味,可口。
【唐山弘藝裝飾】致力于唐山裝修報價,唐山裝修,唐山裝修套餐,唐山家裝公司,唐山大包裝飾,上千平米材料展廳,上千款品牌主材供業主挑選,五星設計團隊、金牌項目經理、材料部、質檢部、客戶部、為每位業主保駕護航,體現完美服務,創造舒心家裝!
裝修分期
設計師:程光 其他/156㎡
設計師:邢志超 現代簡約/143㎡
設計師:邢志超 其他/138㎡
設計師:邢志超 現代簡約/140㎡
設計師:張偉 法式/138㎡
設計師:張志鵬 現代簡約/135㎡