高級感與松弛感的完美平衡
設計師:姚志杰 現代簡約/184㎡
作者:弘藝裝飾發布時間:2019-10-08
弘藝裝飾裝修設計師-楊奇:
主任設計師:楊奇
就職部門:弘藝裝飾唐山設計部
從業時間:10年
畢業院校:河北科技大學
所學專業:環境藝術設計
設計理念:
設計源于生活,體現于生活,用心去體會,用心去創造,讓感覺無限暢享,讓生活更加舒適。
擅長風格:
現代簡約、新中式、歐式經典、鄉村田園、地中海、美式風格、新古典
設計經歷:
(1) 2010年獲得全國青年室內設計大賽優秀作品獎
(2) 2011年河北省設計大賽優秀獎
(3) 2012年獲得實創裝飾優秀設計師獎
(4) 2013年獲得實創裝飾服務優秀獎
唐山案例:
萬科紅郡、金隅樂府、金港靜園、水電首郡、雅頌居、鳳凰世嘉、唐城壹零壹、鷺港小區、南湖金地、景泰翰林、鉑悅山、康馨雅苑
楊奇設計案例:
景泰翰林F區-87平米-現代風格

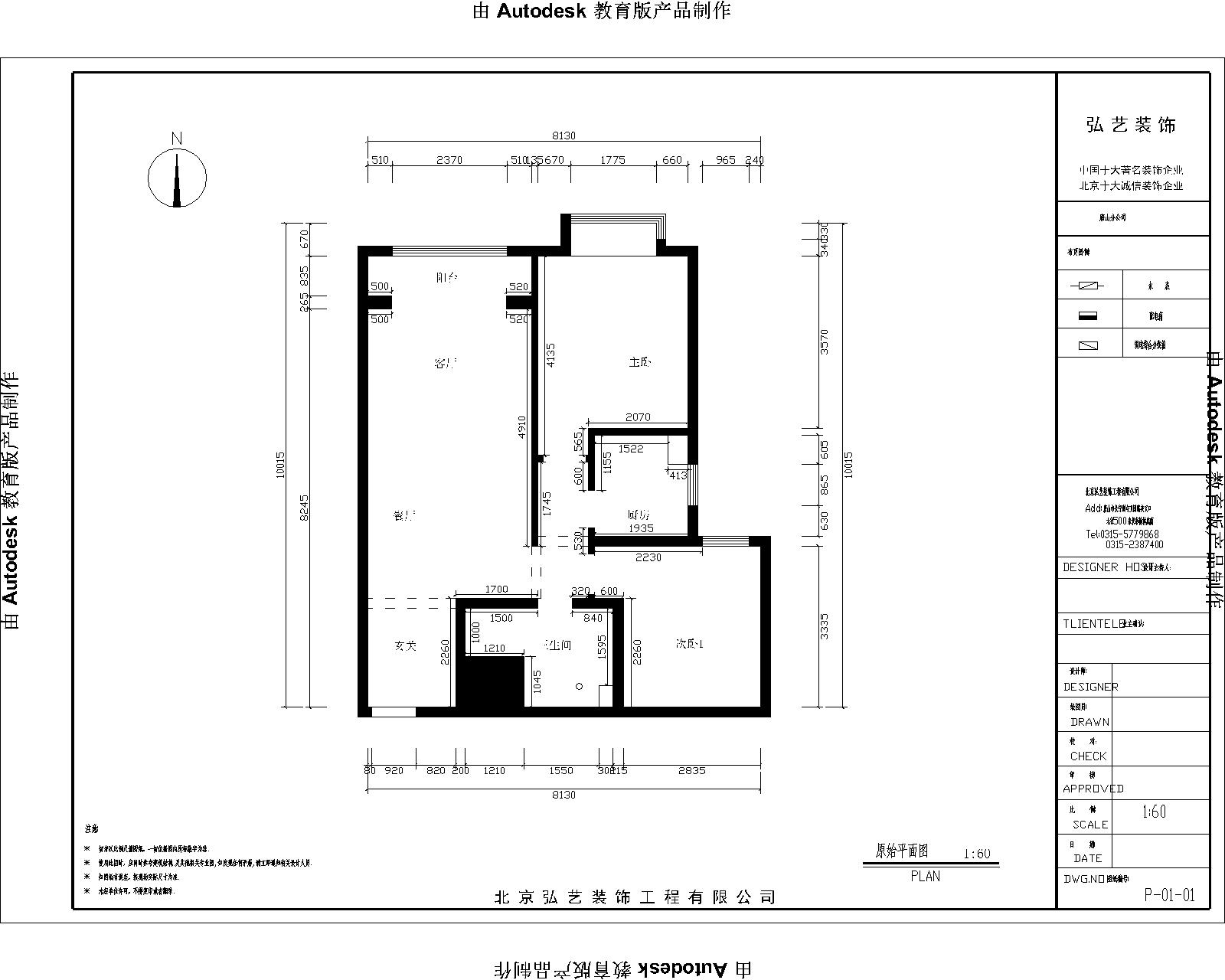
原始量房圖戶型分析:
1、 此戶型為朝南戶型,雖然采光通風很好,但是客餐廳整體來說挺大, 餐廳比較小,位置有限,顯得很擁擠。
2、 衛生間面積不大,空間相對來說比較擁擠。
3、 主臥面積雖然不算小,但是空間布局受限制。

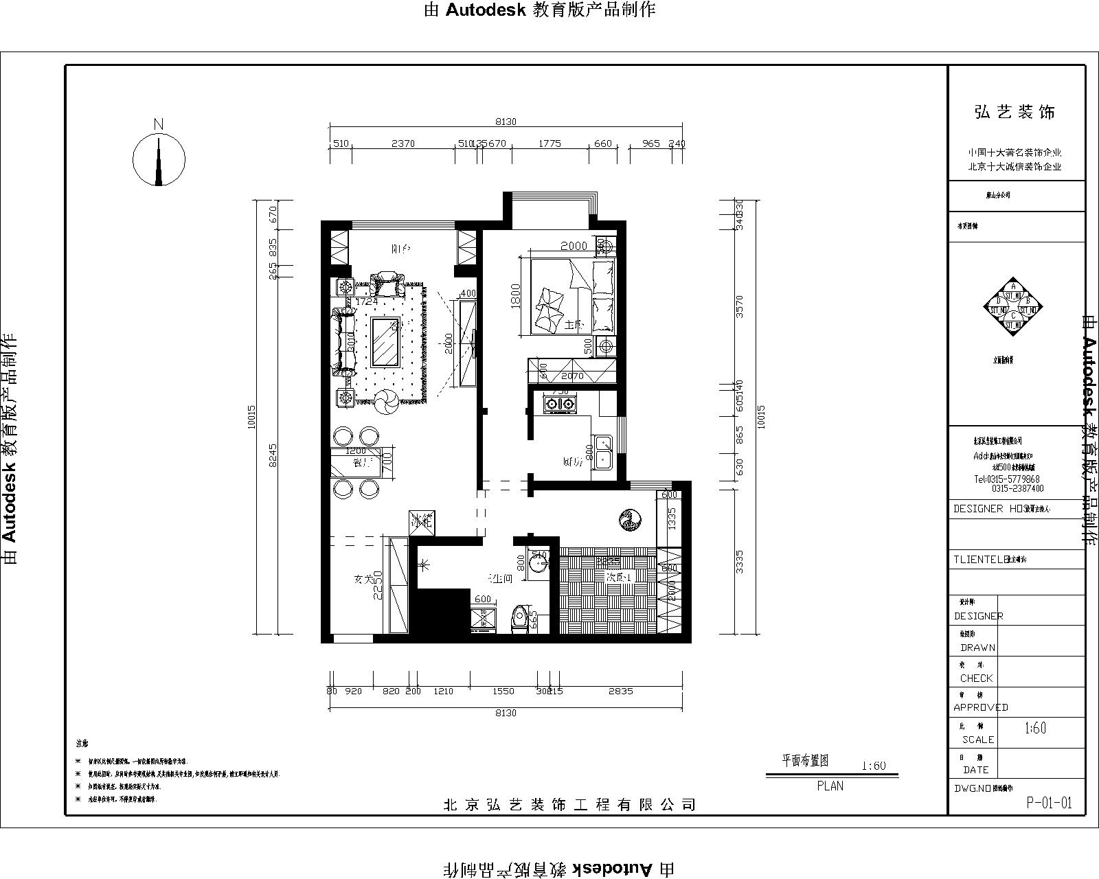
平面布置圖分析
1:客餐廳由于面積算很大,所以在色彩搭配上盡量選用統一的顏色色這樣布局很容易出效果,還會由于空間比較明亮,還會使室內空間顯得很大,產生一種視覺錯覺。以及在后期家具選擇上有更好的選擇,功能性很強,這樣的話就不會擺完家具后不會顯得小或者擁擠,反而會更有效果。
2:主臥室的墻面顏色和家具顏色也是以淺色為主,由于空間不算小,在考慮多個方案后,感覺還是把衣柜放到了床對面的那面墻,這樣的話不僅空間布局合理,而且滿足的功能更多,能增加更多的儲物空間。
3:衛生間面積小,但是還要分出主次。



整個空間的色調為淺色系,因為淺色的色彩可以使人緊張的神經系統和視覺神經得到很好的放松和舒緩壓力,客餐廳頂部做了些石膏板線,很好的突出了現代簡約風格的線條感,既有層次,又簡單大氣,還不愛過時;背景墻采用墻漆顏色簡單明快,下面的電視柜是木質柜臺面,這樣下來色彩與材質都一樣,才能保證效果,也突出了色差與層次的重要性與吸人眼球的效果,屢試不爽。


主臥,次臥室面積不算小,在墻漆顏色上與客廳不同,采用比較溫馨的暖白色,這個顏色既有保護眼睛的作用,又可以增加人的睡眠質量,是很慵懶的一個顏色,效果也不非常好,這是經過多次的實踐證明。在空間布局上,把大衣柜放嵌入式的墻體里面更加節省空間,這樣不僅使得衣柜能過做到最大化,增加儲物,有使室內活動區域很寬松,不擁擠,也很溫馨,是目前大多數年輕人的選擇,深色的地板更加襯托出家具配上的高檔。


表面與比較明亮的瓷片磚形成鮮明對比,這樣的話會顯示出廚房的整潔,此外也要注重實用與儲物空間,對于大多數業主來說,廚房的儲物空間似乎都沒有夠過,隨著時間的推移,鍋碗瓢盆跟衣服一樣,越來越多,空間越來越擁擠,所以再做廚房設計的時候盡量注重盡可能加大廚房的儲物空間。廚房與餐廳空間采光也很理想,此時在選擇瓷磚與櫥柜顏色也是需要色彩比較淺,淺色櫥柜
| 請輸入您的稱呼 |
| 請輸入您的手機號碼 |
| 輸入裝修面積 |
| 選擇裝修風格 |
裝修分期
設計師:姚志杰 現代簡約/184㎡
設計師:張偉 其他/125㎡
設計師:姚志杰 現代簡約/140㎡
設計師:孫天立 新中式/270㎡
設計師:邢志超 法式/130㎡
設計師:邢志超 現代簡約/143㎡