輕法式復古的溫柔暴擊
設計師:張志鵬 法式/135㎡
作者:弘藝裝飾發布時間:2019-06-19
項目名稱 《格山水之至》
設計風格 新中式
地點:萬潤城
項目面積 93平米
戶型 兩室一廳
設計師 張志鵬
設計公司 北京弘藝裝飾(唐山分公司)
主要材料 墻漆 石膏板 石膏線 拋釉磚
工程費用 65000元
業主信息 業主是一對30多歲年輕夫婦,本身為建筑設計出身,因此對設計很有自己的想法和追求,對空間色彩搭配很重視,并且合理利用空間,對新中式風格尤其偏愛且又不喜歡太古板復雜,喜歡簡單而又溫馨的居家氛圍。
業主的小故事 行走于都市中,你看起來和多數人并無明顯區別。你不慌不張、不疾不徐,不喧囂、不張揚、不另類、不閃耀,但干凈而得體;你不追求特立獨行,不渴望出類拔萃,你只是一步步、腳踏實地的為心中的美好生活而奮斗。你身上一定有某種色彩,能夠將你和其他人區隔開來。因為你從未放棄理想的生活,你愿意在力所能及的范圍內,靠近更美的一切。

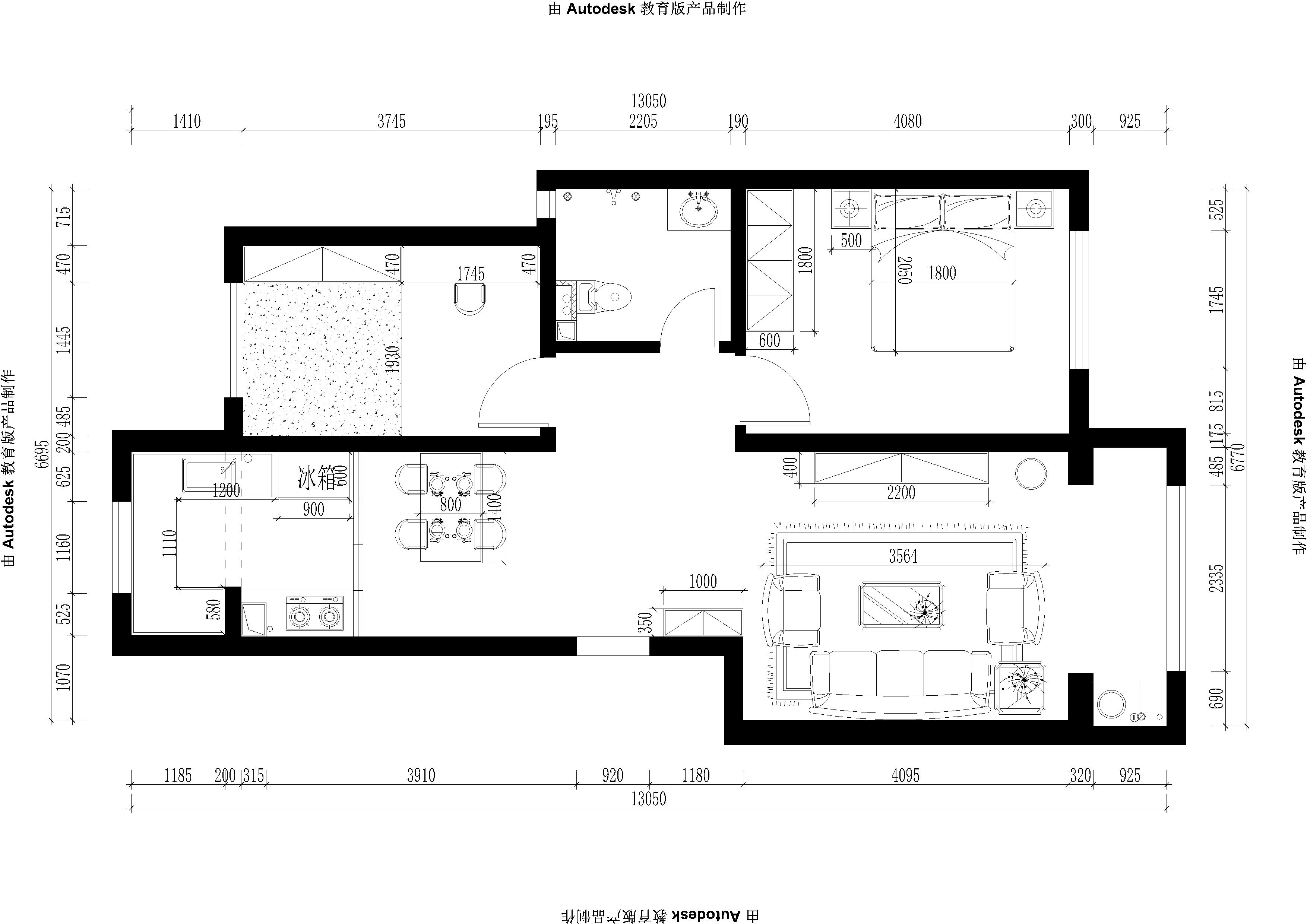
原始圖分析:本方戶型為兩室兩廳南北通戶型,客餐廳分開式的戶型,客廳還有一個生活陽臺,便于儲存一些零碎的東西和晾曬區,廚房屬于寬敞型結構,且帶生活陽臺,因此可以使廚房和生活陽臺相結合讓此空間更寬闊更實用,衛生間空間比較大能夠合理擺放潔具。

平面布置圖分析:進門右手邊可以考慮放置一個鞋柜起到很好的收納作用,餐廳于廚房緊鄰比較方便,且廚房擴大以后冰箱也完全可以考慮放在廚房里面,使得在功能使用上顯得非常完美,廚房是U型柜子,主臥室放正常尺寸的雙人床和大衣柜保證充足的儲物空間,次臥室建議考慮榻榻米定制這樣可以大大提高空間利用率,充分利用了空間。


設計理念:人云“書房是腦,臥室是心,客廳似胸襟”,恰如其分的表現出中國傳統文化在現代家居設計中的延續??蛷d的設計以方為主,方正的頂面設計與天然的材料的互補給人以人與自然和諧統一,中庸端正美感,方圓之間顯現規矩的魅力。在這里有歡聲笑語,有意見商議,有酒后飯余后的心靈溝通,溫馨柔和的燈光,一切顯得那么和諧!

從客廳的設計風格和家居擺設我們就能看出主人胸懷以及喜好等跡象來。偌大的立體空間使得所有設想都得以實現,于淡泊閑曠中透出一種朗秀高華的氣象。家具以白色為主配以別色軟飾,造型素簡整體空間雅致沉穩、氣度不俗。其中還融入了現代元素讓整個居室環境更包容。

進門的右手邊是一個白色收納鞋柜,在整個主色調中,顯得那么的自然,舒適,鞋柜上的裝飾,再加上白色的餐桌和深色的酒柜,整個空間是那么的渾然天成,美的扣人心弦。

全套定制家具,典雅高貴。說到“山水”便會想到吳冠中筆下“畫不盡的江南人家”。寥寥幾筆,春風十里。整體置物柜與燈具選用金屬質感,時尚感與新中式做完美結合。

主臥的整體色彩仍以主人喜愛的色調為主,配以木色家具,烘托出舒適、靜謐、放松的心境。米色棉麻材質被子,最大可能應用與自然貼近的顏色與元素,創造舒適自在的生活方式。透視感,空間之間可以互相共享,增加空間層次。留有充裕的儲物空間,可以隨心安置私人物品。加上點小裝飾畫的點綴,顯得整體柔美,這樣回到家以后就可以身心放松!

志得意滿時仍虛心謙平和,不驕不狂。簡約柔和色調基底省去了多余的喧鬧色彩。無事煩擾之時,不妨擁有“采菊東籬下,悠然見南山”之閑雅心情,意念便進入豁達之妙境。簡潔干凈,不需要太多的裝飾。充滿靜修禪意,與主人去除浮躁物欲,關注果決心靈的情緒不謀而合。
【唐山弘藝裝飾】致力于唐山裝修、唐山哪家裝修好、唐山大包裝飾、唐山裝修案例、唐山室內設計、唐山家裝公司、唐山家裝設計、唐山家裝整裝、唐山別墅設計、唐山裝修報價、唐山裝修公司排名上千平米材料展廳,上千款品牌主材供業主挑選,五星設計團隊、金牌項目經理、材料部、質檢部、客戶部、為每位業主保駕護航,體現完美服務,創造舒心家裝!
裝修分期
設計師:張志鵬 法式/135㎡
設計師:張偉 其他/125㎡
設計師:姚志杰 現代簡約/140㎡
設計師:邢志超 新古典/99㎡
設計師:孫天立 新中式/270㎡
設計師:邢志超 法式/130㎡