輕法式復古的溫柔暴擊
設計師:張志鵬 法式/135㎡
作者:弘藝裝飾發布時間:2019-06-15
項目名稱:雅致新中式
設計師姓名:楊佳會
設計公司:北京弘藝裝飾唐山分公司
地點:景泰翰林
項目面積:120平米
主要材料:基礎工程加地磚,櫥柜,衛浴潔具,門等主材。
工程費用:88000元
業主基本信息:
房子是四口人居住,包含兩個孩子和一對夫婦居住,業主是一對很有品味的夫婦,特別喜歡中式元素,但又想要簡約的實用性,要求合理利用空間,造型簡潔,不喜歡特別復雜花哨的裝修風格,喜歡簡單而又溫馨的居家氛圍,所以新中式風格成為了最佳的裝修方案
業主小故事:
業主是四口之家,年輕的時候自己的新居是請“游擊隊”裝修的,錢沒少花,心沒少操,質量卻糟的一塌糊涂。所以這次裝修,業主決定找正規整修公司,畢竟三分材料,七分施工,正規裝修公司一方面能保證施工質量,另一方面售后服務有保障。由于之前裝修都是自己選擇,造型自己設計,導致后來裝成 效果不佳,出現顏色搭配不協調,設計效果不理想
設計師感言:
藝術源于生活,而生活是藝術的來源,在生活中追求藝術之美的存在。
當人們的空間被各種物質擠壓的時候,也就失去了本質,我們要去掉一切虛假的、表面的、無用的東西,而剩下真實的、本質的、必不可少的東西,因而得到更多的空間、更多的舒適、更多的效率、更多的美……

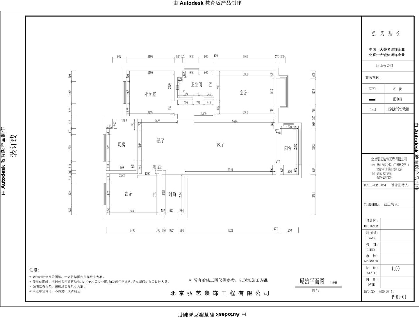
原始圖分析:
本方案戶型為三室兩廳一廚一衛的戶型,整體平面比較規整方正,有利于空間分割和家具的擺放,面積利用率高。廚房空間充足,臥室,客廳和陽臺空間足夠用,采光性很好。衛生間的空間不大,早上大人和孩子同時用起來,略顯擁擠

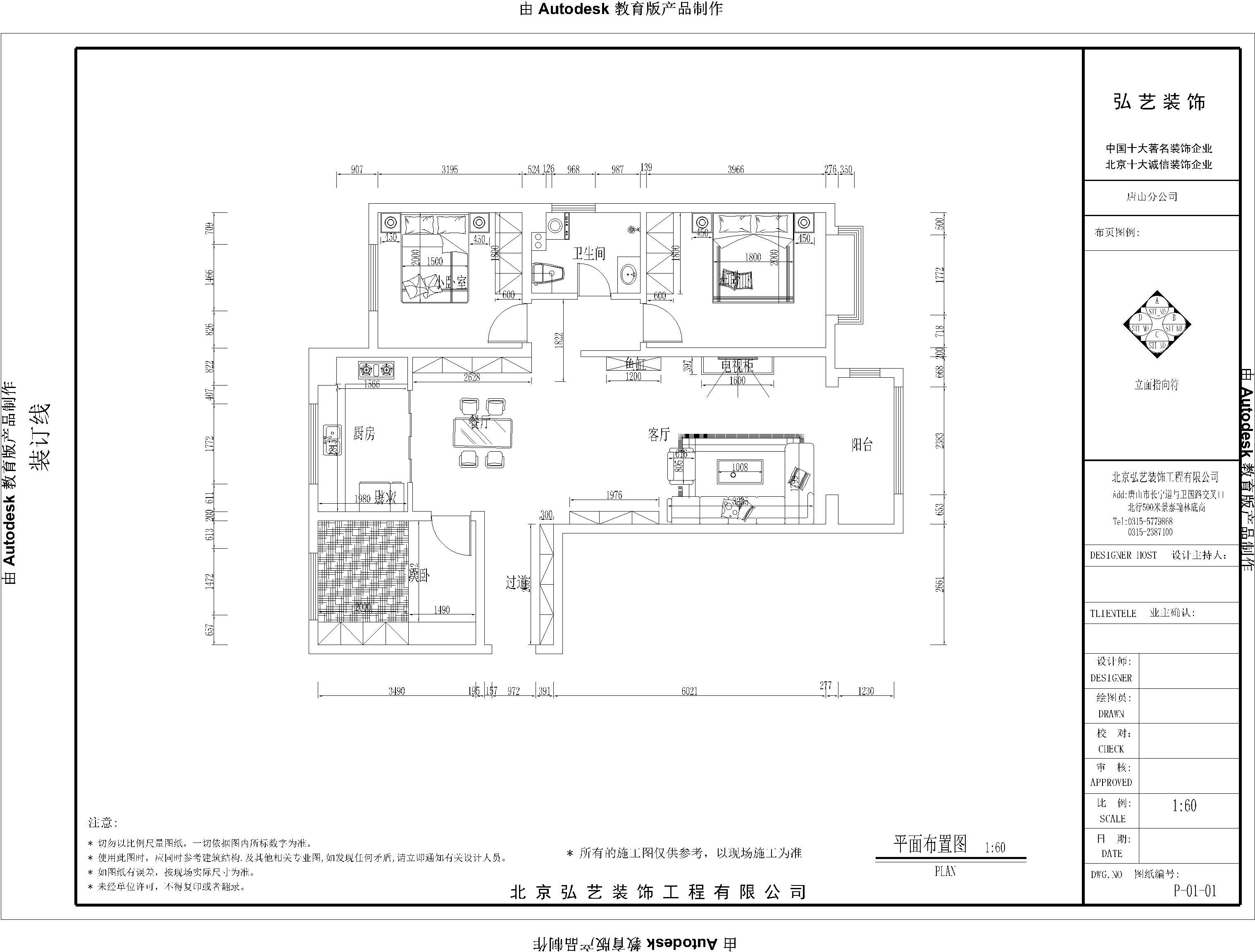
平面分析:
進門右手邊做個通頂的鞋柜,能起到很好的收納作用;左手邊是榻榻米書房,榻榻米上做了通頂衣柜,而且做了書桌,培養孩子愛讀書的習慣,保證充足的儲物空間;廚房是L型櫥柜,客廳和餐廳可以根據自己的喜好放合適尺寸的沙發,客廳陽臺作為正常的晾衣區;主臥室和主臥室放正常尺寸雙人床和大衣柜保證充足的收納空間。


中式風格在家居布局上講究方正、對稱的布局,造型樸素優美,色彩濃厚成熟。客廳的家具選擇上以端莊大氣的暗紅色為主,體現中式文化的深沉底蘊,在細節上,選取花鳥等裝飾元素,體現了家居主人的文化情趣,有取其美好的寓意來表現人們對美好生活的向往和追求。

用頂面造型頂把客廳和餐廳做了整體區域的分割,裝上有幾何造型的裝飾吊燈,未安裝燈帶和筒燈,以實用性為主。墻上的的裝飾畫,能體現居著的簡單心境,長期受到字畫的熏陶,也體現了主人自身的文化檔次。

用頂面造型頂把客廳和餐廳做了整體區域的分割,裝上有幾何造型的裝飾吊燈,未安裝燈帶和筒燈,以實用性為主。墻上的的裝飾畫,能體現居著的簡單心境,長期受到字畫的熏陶,也體現了主人自身的文化檔次。
裝修分期
設計師:張志鵬 法式/135㎡
設計師:程光 其他/156㎡
設計師:邢志超 新古典/99㎡
設計師:孫天立 新中式/270㎡
設計師:邢志超 現代簡約/140㎡
設計師:張偉 法式/138㎡