原木風
設計師:張偉 其他/125㎡
作者:弘藝裝飾發布時間:2019-06-05
項目名稱:迷離的都市----覺醒
項目地點:景泰翰林F區
設計及施工機構:弘藝裝飾有限公司
設計師:劉義
施工項目建筑面積:105平米
施工涉及材料:瓷磚 、墻漆、原木家具、板材定制、中式花格
工程造價:78650
業主信息:屋主是事業有成的成功人士,故整體格調以新中式,選擇了深色原木的實木家具作為家里的大部分家具用材,顯得沉穩又不失格調。
業主小故事:一個三口之家,男女主人事業已達到所屬的位置,女兒有自己挺不錯的工作,其他沒有更高的追求,唯獨是居所沒有自己的所屬,故而相識親力親為為其打造屬于自己的古樸歸屬空間。

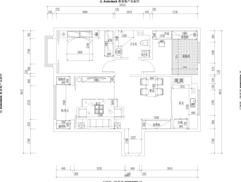
此戶型為原始的平面圖,屬于三室室兩廳的南北通透的常見戶型,簡約布局沒有太大格局變動,主臥、次臥相鄰而坐,廚房、衛生間的格局也比較明朗。

上圖為戶型的平面的布局圖進門因為空間太小沒有辦法放置鞋柜因而放到轉交的位置,充分的利用空間跟衣帽間結合一起,因廚房空間使用正合適,相鄰的是餐廳酒柜增加儲物量,次、主臥室屬于正常放置衣柜床,客廳三座沙發,餐廳居中放置餐桌。廚衛空間根據下水及功能放置使用。

客廳的整個色調分為三個部分,一是墻面的暖灰色,低調中又帶點清新,二是吊燈的暖白色,干凈大氣,三是地磚上的暖色,三個顏色形成三個大色塊。
地面拼花的造型豐富了整個空間的律動性。電視背景墻面的無風格的處理恰到好處,中間木棉花壁畫的處理彰顯大氣,配合新中式的風格容入性很強。

沙發背景墻的黑框實木線條的勾勒, 配上大氣簡約的裝飾畫相得益彰。再搭配古樸的中式家具,把中式打造的跟家玲離盡致。

新中式清透、內斂、極致,游走黑白之間,沒有黑的剛硬也無白的純粹帶著幽幽的意境之美。東方的水墨寫意和著現代的簡約利落,在訴求著同樣的精神,除卻繁冗唯有禪意風骨和智慧空間。
新中式不僅俘獲了眾多家居愛好者的心,令人一見鐘情,新中式風格還是東方美學的進化論,是情結,更是情懷。我們可以看到艷麗的雕塑在碧水藍天間歌舞;可以看見傳統的山水園林悄然在大堂里彰顯;可以看見“山”、“水”造型的藝術裝置和燈具在空間肆意的游走......零零總總,讓人心生羨慕。

臥室空間尋一方凈土,擱置這顆躁動的心靈,植半畝花田,養一池安詳,看花開花落,享四時交替,這無疑是一種理想的生活狀態。新中式,用理想構筑了一個讓人生向往的“世外桃源”。
| 請輸入您的稱呼 |
| 請輸入您的手機號碼 |
| 輸入裝修面積 |
| 選擇裝修風格 |
裝修分期
設計師:張偉 其他/125㎡
設計師:張天任 現代簡約/103㎡
設計師:邢志超 現代簡約/143㎡
設計師:邢志超 其他/138㎡
設計師:張偉 法式/138㎡
設計師:張志鵬 現代簡約/135㎡