湖岸緹香140㎡現代輕奢實景
設計師:姚志杰 現代簡約/140㎡
作者:弘藝裝飾發布時間:2019-06-01
項目名稱:淡雅含蓄
設計師姓名:呂嘉昕
設計公司:北京弘藝裝飾唐山分公司
地點:錦繡花苑
項目面積:129平米
主要材料:基礎工程加地磚,櫥柜,衛浴潔具,門等主材。
工程費用:100800元
業主基本信息:
房子是四口人居住,業主要求造型簡潔,整體色彩明亮,兩個孩子年齡差異有些大,更多是偏向小女兒和他們一起居住,將來長子如有需要,可能改造成婚房,現階段要求簡潔大方,家庭人數也對空間要求增加。
業主小故事:業主兩口子是生意人,看多了各種裝修風格,現在追求的是回歸自然,不要求有過多復雜的裝飾,女主人對整個空間的亮度有要求,而男主人比較喜歡中式,穩重大氣,最后達成統一,選擇新中式,滿足各自的需求。

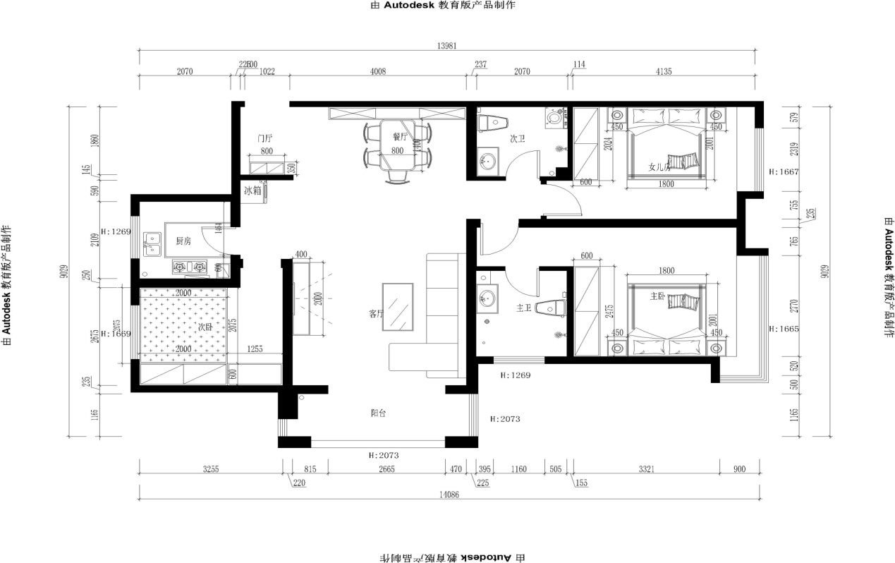
原圖分析:
該戶型整體空間比較規整,臥室,客廳和陽臺空間足夠用,采光性很好。
不足的地方:
1. 廚房空間比較窄,沒有放置冰箱的位置,
2. 次衛是暗衛,空氣流通不好
3. 主衛沒有煙道,需要從墻上開孔。

平面分析:
入戶玄關處正對一面墻,此處通過隔斷或者軟裝飾來弱化空間的局促??蛷d電視背景不大,次臥室比較小,為了增強空間利用率,選做榻榻米。廚房空間不大,把冰箱放在玄關背景后面,這樣既隱蔽,又擴大了廚房的空間利用率。

由于業主喜歡簡簡單單的東西,整體要做中央空調,所以頂面需要做吊頂,用簡潔明快的線條勾勒出大體輪廓,顏色上采用清新明快的色彩搭配。從而使得整體空間更簡潔大氣明快。

由于電視背景不大,所以沒有過多的修飾背景,巧妙的將傳統中式與現代結合,讓家居在時尚流露傳統元素,用簡易金屬線條來勾勒大體輪廓,中間用壁紙來陪襯,這樣做出來的效果更簡潔大氣。頂部的石膏板吊頂造型簡單的裝飾與家具和電視背景墻呼應,從而使整個空間更具層次感。

全套定制家居,以白色為主,配上餐椅藍色軟飾,造型素簡整體空間雅致沉穩、氣度不俗。還融入了現代的元素,金屬元素在家居和擺件之間的運用,讓整個居室環境更包容。再加上墻面中式裝飾畫,時尚感與新中式做完美結合。

臨窗而坐,紗簾半合。安享屬于自己的時光,整個臥室區域素雅大方,整體以暖色調為主,柔和的色彩使人隨意、放松的心情駐留在房間里,使得緊湊的空間具有視覺延伸和放大空間的效果。床頭燈總是在需要它的時候暖暖的陪伴在主人的身邊。

家中最夢幻的空間是女兒的房間。為了圓女兒一個公主夢,選擇了她最愛的粉色做主色調搭配白色做點綴,兒童房大面積的采光使得整個空間明亮,顏色混搭中透出可愛活波的氣息,超適合孩子。墻上的裝飾畫和飾品的輕巧有致,美觀和收納兼備。

在有限的空間內設計木質榻榻米與衣柜組合,對于空間利用及美觀裝飾得到完美的展現出來。充分的滿足了收納空間,線條簡潔的白色儲物柜,強調了設計的功能性原則。榻榻米與儲物柜巧妙融為一體,柔和過渡,解放了空開同時增添了功能性。

衛生間在選擇瓷磚的時候選用了灰色瓷磚,簡潔大方,而且不失氣質。深色的木質浴室柜,透露出自然與原始之美,能充分體現主人的家居檔次和身份的尊貴。
【唐山弘藝裝飾】致力于唐山裝修報價,唐山裝修網,唐山裝修套餐,唐山家裝公司,上千平米材料展廳,上千款品牌主材供業主挑選,五星設計團隊、金牌項目經理、材料部、質檢部、客戶部、為每位業主保駕護航,體現完美服務,創造舒心家裝!
裝修分期
設計師:姚志杰 現代簡約/140㎡
設計師:程光 其他/156㎡
設計師:邢志超 現代簡約/143㎡
設計師:程光 其他/155㎡
設計師:邢志超 其他/138㎡
設計師:張志鵬 現代簡約/135㎡