輕法式復古的溫柔暴擊
設計師:張志鵬 法式/135㎡
作者:弘藝裝飾發布時間:2019-05-31
設計師姓名:劉瑞芹
設計公司:北京弘藝裝飾
地點:鉑悅山
項目面積:135㎡
風格:現代簡約黑白灰風格
工程費用:12萬
業主基本信息:
男主人在外地工作,平時工作比較忙,而且房子是作為婚房來住,沒有太多時間盯著裝修,他喜歡的色調整體以黑白灰為主,整個顏色看起來時尚大氣一些,因為工作太忙,所以想在裝修的新家上彌補家人一些遺憾;女主人平時時間也不是很空余,所以整個裝修全權委托裝飾公司來做,畢竟小兩口還未結婚,所以綜合采納兩個人的意見。
業主小故事:
在整個設計過程當中,一開始并不是很順利,男主人比較喜歡現代簡約黑白灰風格,女主人則喜歡溫馨典雅的暖色系,一開始小兩口誰都不服輸,都想按照自己喜歡的方式去做,但畢竟愛情的力量還是偉大的,最后女主人還是比較尊重男主人的意見,統一了現代簡約黑白灰風格,最后經過很長時間溝通和改進,小兩口對整體的設計還是非常滿意的。

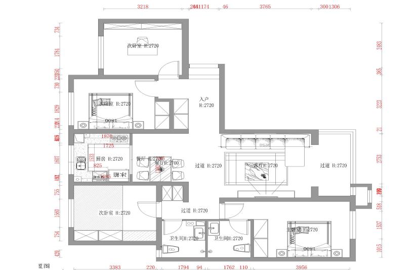
原始量房圖戶型分析:
1、 此戶型未偽南北通戶型,白天采光充足,通風性良好。南陽臺,生活方便。
2、 客餐廳區域較小,中廳區域較大。
3、 此戶型拐角很多,看上去不是那么方正。

平面布置圖分析
此平面布局,按人體工程學,充分考慮客戶生活習慣,一進門右手邊做為一個書房,平時可以上上網沒看看書,比較安靜的空間,除了書房以外分為三個臥室,挨著書房的臥室比較小
經過改造后做了一個嵌入式的衣柜,還有一個獨立的鞋帽柜,合理利用了整體的空間,再往里看廚房空間比較小,經改造將廚房空間擴大,一家人在廚房做著美味的食物,很愜意,兒童房采用踏踏米的形式,增加了儲物空間,主臥室就是很常規的擺放,可以放一個大大的雙人床,愜意的生活,溫馨的家


每個人都喜歡自由,追求自由,所以家里裝修一定要簡潔,我接觸的業主一家人對待生活很熱情,
正是他們的熱情感染了我讓我有了創作的激情,好的設計是有感情的,灰色中透著淡淡的暖色讓
家里非常有層次感。 現代日子水平的進步給大家的日子帶來了很大的自由空間,大家在日子水
平進步的一起,對寓居的環境也提出了更高的需求,環保的家居環境受到了更多的期待,精約的
個性、私密的自個空間逐漸的成為新的時髦,在這個個性的引導下,家私的組合規劃也趨向于優化。


睡床是沿著窗戶擺設,兩邊預留阿足夠的走動空間,墻面粉刷淺灰色的墻漆與地面地磚顏色相近,看起來甚是和諧。床品采用淺灰色軟包形式,增加臥室的舒適感,配上深灰色的床品床頭兩邊金屬材質的臺燈凸顯了整個空間的大氣感,床旁邊有一個大大通頂的衣柜增加了整個屋子的儲物空間,臥室一進門的位置頂面做了個平面吊頂,減弱了臥室的刀把形狀 現代住所的開展,小家庭的組成,大家心理上的需求,期望臥室具有私密性、蔽光 性,配套洗浴,靜謐舒服,與住所內其他房間分隔開來。我規劃的臥室除了主臥加了個內衛外,再者除了擺放雙人床外,留有必定的面積擺放臥室家私,如衣柜,電視柜,床頭柜,還留有必定空間能夠休閑活動 

在設計次臥室床頭背景墻其實不用太過于復雜,一個好的臥室床頭背景墻設計是突顯品味的地方。但是相對來說次臥室可以弱化設計,一般都是作為兒童房,不必設計的太繁瑣,一般是做為客房,也沒必要設計的太復雜。簡單的臥室床頭背景墻裝修就可以將裝飾畫或婚紗照等等,有深意的物件展示出來。

很多時候,由于房間戶型設計的局限性,衛生間的面積比較狹小,但科學合理的設計,可以讓衛生間看起來明亮寬敞且使用,雖然衛生間狹小但是不要忽略衛生間這個小地方,他關系著全家人的健康以及生活質量,衛生間設計要注意防水,防潮,通風,美觀和易清潔同樣重要,衛生間里面采用懸空式浴室柜,這樣比較好清潔大理,馬桶后面加上花片點綴,為整個衛生間增添了活力。

每個人都喜歡自由,追求自由,所以家里裝修一定要簡潔,我接觸的業主一家人對待生活很
熱情,正是他們的熱情感染了我讓我有了創作的激情,好的設計是有感情的,灰色中透著淡
淡的暖色讓家里非常有層次感。 現代日子水平的進步給大家的日子帶來了很大的自由空間,大家在日子水 平進步的一起,對寓居的環境也提出了更高的需求,環保的家居環境受到了更多的期待,精約的個性、私密的自個空間逐漸的成為新的時髦,在這個個性的引導下,家私的組合規劃也趨向于優化。
【唐山弘藝裝飾】致力于唐山別墅設計,老房裝修,唐山家裝整裝,老房改造,上千平米材料展廳,上千款品牌主材供業主挑選,五星設計團隊、金牌項目經理、材料部、質檢部、客戶部、為每位業主保駕護航,體現完美服務,創造舒心家裝!
| 請輸入您的稱呼 | 
| 請輸入您的手機號碼 | 
| 輸入裝修面積 | 
| 選擇裝修風格 | 
裝修分期
設計師:張志鵬 法式/135㎡
設計師:邢志超 現代簡約/124㎡
設計師:姚志杰 現代簡約/140㎡
設計師:孫天立 新中式/270㎡
設計師:張偉 法式/138㎡
設計師:張志鵬 現代簡約/135㎡