簡約風無主燈,心安之處
設計師:邢志超 現代簡約/124㎡
作者:弘藝裝飾發布時間:2019-05-30
項目名稱:越
設計師姓名: 汪艷春
設計公司:北京弘藝裝飾唐山分公司
地點:瑞安園
項目面積:90平米
工程費用:58300元
業主基本信息:
房子是兩口人居住,房子是準備結婚用的婚房,客戶工作比較忙。由于工作的原因,平時沒有時間和精力去建材城自己買材料,所以選擇了一個靠譜的裝修公司,想工和料都包出去,只需要自己買家具和電器。這樣會更省心省力些。業主喜歡簡單溫馨的東西,所以在設計上要求明亮簡潔舒適。
業主小故事:
業主是兩口之家,平時由于工作原因沒有時間和精力自己采購材料,所以選擇了整包模式的裝修。女主人喜歡簡潔溫馨的感覺,業主和我說“我是一個特別喜歡簡潔的人,裝修要簡簡單單的東西,色彩要明快些。裝修完希望是她喜歡的樣子”

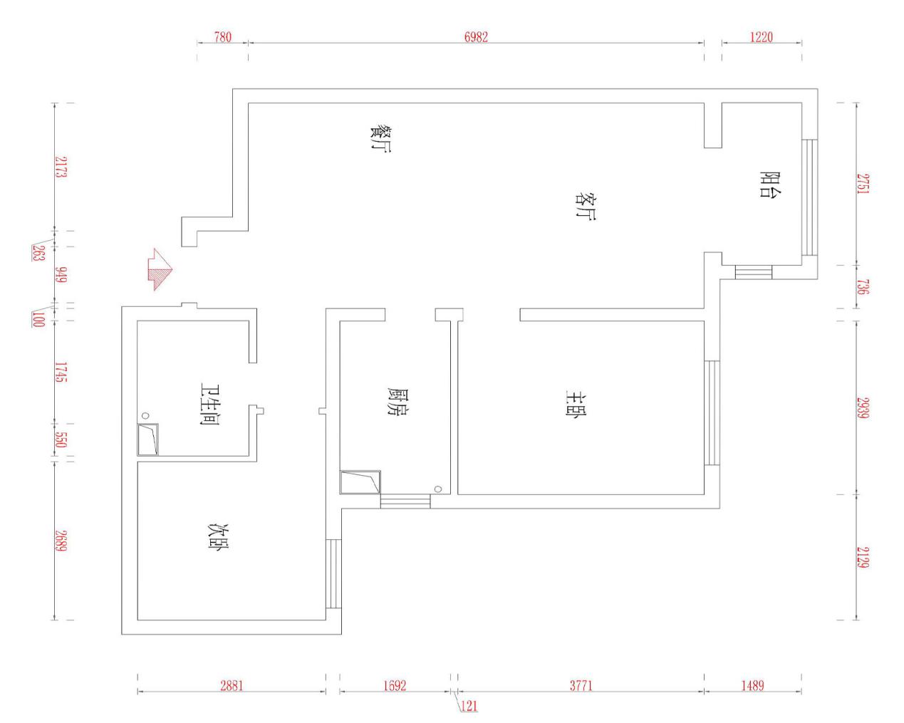
原圖分析:
該戶型臥室空間比較規整,主臥,客廳,餐廳空間足夠用,采光性很好。
不足的地方:
1.該戶型不足的地方是衛生間沒有窗戶
2.次臥室面積偏小

平面分析:
由于該戶型廚房面積不大,所以把冰箱放在餐廳,冰箱和餐廳邊上的儲物柜放在一起,這樣整體效果比較好。由于次臥室偏小,考慮到以后的生活用品可能會越來越多,客戶還未買地下室,所以次臥室做了一個榻榻米的設計,榻榻米的儲藏功能非常強大,這樣更能把空間充分利用上

本案例是一個90平米的普通住宅房,空間整體設計比較簡潔。給忙碌回家的主人一個溫馨安逸的空間好好休息,沒有了喧鬧與煩惱,就靜靜的在這個空間享受著家庭的溫馨。因為業主喜歡簡單而不缺功能性的裝修,所以硬裝比較簡單,大體的輪廓走向很明朗。在顏色搭配上使用了深淺對比色來突出房間的層次感。

本案例是一個90平米的普通住宅房,空間整體設計比較簡潔。給忙碌回家的主人一個溫馨安逸的空間好好休息,沒有了喧鬧與煩惱,就靜靜的在這個空間享受著家庭的溫馨。因為業主喜歡簡單而不缺功能性的裝修,所以硬裝比較簡單,大體的輪廓走向很明朗。在顏色搭配上使用了深淺對比色來突出房間的層次感。

由于背景墻面積不是很大,不適合做太復雜的造型。設計師用彩色的墻漆和簡潔的電視柜相搭配,這樣做出來的效果更簡潔大氣。頂部的石膏板線條與家具顏色呼應,從而使整個空間更具層次感。

考慮到整體色彩不易偏暗,所以客廳和餐廳采用彩色的墻漆來點綴,讓整體效果更簡潔,明快。家具采用深色對比色,使得整體空間更清新活躍。悠閑的時候喝著下午茶,陽光溫暖著整個空間,所有生活的煩惱都拋之腦后。

臥室以溫馨舒適為主,顏色不宜太暗,要避免使用大面積深色以防止悶重的感覺。所以在臥室的配色上用淺色調來進行調和。床頭上配簡單裝飾畫來點綴,離開喧鬧的城市,回到自己溫馨的港灣,把工作中的一切煩惱的拋之腦后,靜靜享受屬于自己的這個時光。

衛生間的色彩搭配看起來很舒服,深淺搭配的浴室柜看起來更有質感,白色墻磚搭配彩色潔具使整體空間更具層次感,顏色明快的色彩使得整體空間看上去不再單調。整個衛生間以業主的生活習慣為出發點,簡潔明快舒適并具有功能性。
【唐山弘藝裝飾】致力于唐山大包裝修,唐山裝修,唐山裝修套餐,唐山家裝公司,唐山別墅設計,唐山裝修效果圖,唐山家裝整裝,唐山家裝設計,上千平米材料展廳,上千款品牌主材供業主挑選,五星設計團隊、金牌項目經理、材料部、質檢部、客戶部、為每位業主保駕護航,體現完美服務,創造舒心家裝!
裝修分期
設計師:邢志超 現代簡約/124㎡
設計師:姚志杰 現代簡約/140㎡
設計師:程光 其他/156㎡
設計師:邢志超 新古典/99㎡
設計師:邢志超 法式/130㎡
設計師:邢志超 其他/138㎡