簡約風無主燈,心安之處
設計師:邢志超 現代簡約/124㎡
作者:弘藝裝飾發布時間:2019-05-30
設計師姓名:林曉芳
設計公司:北京弘藝裝飾
小區:恒大學庭
地點:簡約風格
房屋戶型:三室兩廳一衛一廚
項目面積:106㎡
工程費用:6.9萬
業主基本信息:
女主人是個普通職工,溫文爾雅,單位在唐山,男主人也是普通的工作者,平時工作比較忙,沒有太多時間盯著裝修,女兒在國外讀書。這是浪漫的一家人,男主人女主人都很善良,為人和善。女主人要的是純樸而又溫馨的家,更多的是愜意和浪漫,男主人的唯一期許就是女主人和女兒開心就好。
業主小故事:
匆忙的生活節奏,平凡的生活,他們是一對平凡再平凡不過的夫妻,早飯中飯午飯,上班下班,就是這種平凡的生活他們是幸福的,相互依偎,相互關懷,相互愛著彼此,生活是平凡的樂趣,是續寫的熱情;生活是彼此的默契,是相互的理解和依賴。

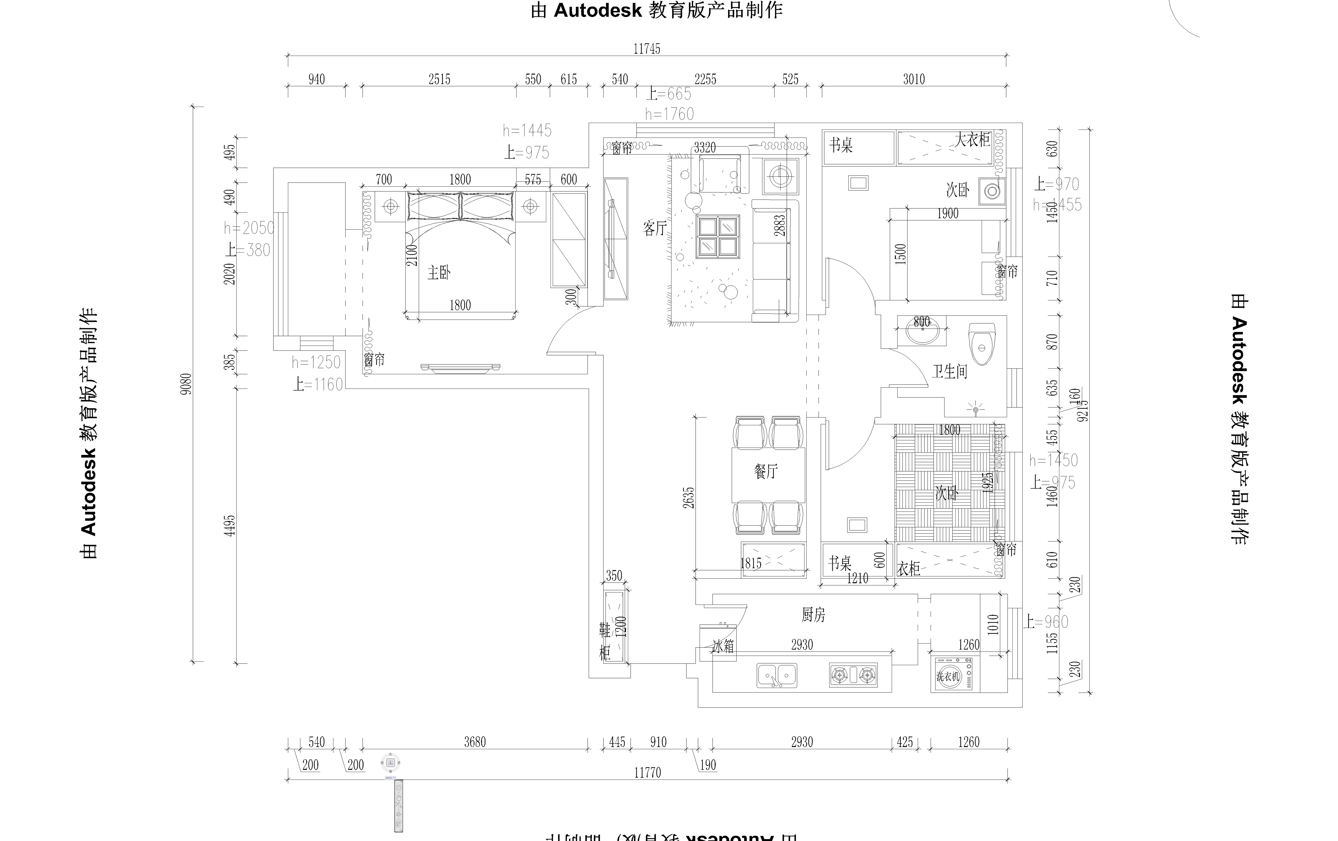
原始量房圖戶型分析:
1、此戶型為南北通戶型,所有空間均帶窗子,白天采光充足,通風性及好。
2、空間劃分明確。
3、不足之處,空間整體格局有點零碎,但是每個獨立空間還是比較方正的。

平面布置圖分析:
入戶門口獨立的門廳,客廳、餐廳獨立而又寬敞的空間,接近大大的落地窗。主臥室寬敞明亮,南陽臺可做晾曬衣服的空間,既有實用性又起到風水分割的作用。女兒房在現有的空間滿足大衣柜書桌床的多重功能,北次臥室就是充當衣帽間和客房的作用了。根據人體工程學,通過簡單的空間邏輯,規劃每一寸空間充分發揮它的意義。



本案構思著重于空間與自然生態的融合,強調線性流動的變化,將設計的元素、色彩、照明、原材料簡化到最少的程度,但對色彩、材料的質感要求很高。非常含蓄的簡約空間設計,來達到以少勝多、以簡勝繁的效果,以寧缺勿濫為精髓,合理的簡化居室,從簡單舒適中體現生活的精致。讓人充分感受到了生活的休閑與舒適。



臥室的設計,強調功能性設計,線條簡約流暢,色彩對比強烈,這是現代風格家具的特點。幾何線條修飾,色彩明快跳躍,外立面簡潔流暢,由于線條簡單、裝飾元素現代風格家具需要完美的軟裝配合,軟裝到位是現代風格家具裝飾的關鍵。家中的聲色不在于多,在于調配。不管房間多大,一定要顯得寬闊。不需要繁瑣的裝修和過多家私,在裝修與安置中最大極限的表現空間與家私的全體調和。外型方面多選用幾何構造,這就是現代精約主義時髦個性。過多的色彩會給人以亂七八糟的感受,在現代精約個性中多運用一些純潔的色彩進行調配,這么不管家私外型和空間布局,才會給人耳目一新的驚喜。


簡約風格廚房設計特點,盡可能不用裝飾和取消多余的東西,強調形式應更多地服務于功能。廚房里除了保存最基本的貯藏、洗刷、烹飪等功用外,已很難找到別的不必要的東西,刀叉等有用東西也只是滿意主婦的最基本需要,而不是多得讓人分不清怎么運用的各種東西。精約人士眼里繁瑣的功用被省掉,底柜的規劃也摒棄傳統豎立在地上的方式,水、電、氣的管線都被隱藏在墻內。體現時代特征為主,沒有過分的裝飾,一切從功能出發,講究造型比例適度、空間結構圖明確美觀,強調外觀的明快、簡潔。體現了現代生活快節奏、簡約和實用,但又富有朝氣的生活氣息。
【唐山弘藝裝飾】致力于唐山大包裝修,唐山裝修,唐山裝修套餐,唐山家裝公司,唐山別墅設計,唐山裝修效果圖,唐山家裝整裝,唐山家裝設計,上千平米材料展廳,上千款品牌主材供業主挑選,五星設計團隊、金牌項目經理、材料部、質檢部、客戶部、為每位業主保駕護航,體現完美服務,創造舒心家裝!
裝修分期
設計師:邢志超 現代簡約/124㎡
設計師:姚志杰 現代簡約/140㎡
設計師:邢志超 新古典/99㎡
設計師:張天任 現代簡約/103㎡
設計師:邢志超 法式/130㎡
設計師:張偉 法式/138㎡