湖岸緹香140㎡現代輕奢實景
設計師:姚志杰 現代簡約/140㎡
作者:弘藝裝飾發布時間:2019-05-29
項目名稱:在云端
設計師姓名: 趙馥琳
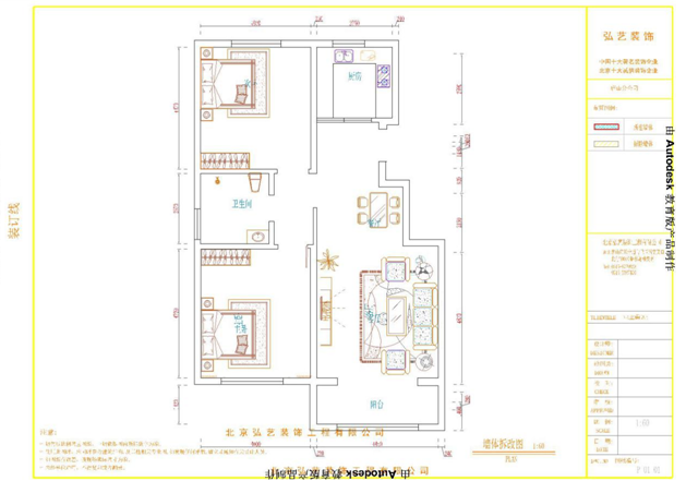
設計公司:北京弘藝裝飾唐山分公司
地點:萬潤城
項目面積:89平米
主要材料:基礎工程加地磚,櫥柜,衛浴潔具,門等主材。
工程費用:62367元
業主基本信息:
這次的女主人是個90后的美女,曾經的她也迷戀于北歐小清新,但考慮到父母將來會在一起住,為了使得和爸爸媽媽的小團聚也溫馨舒適,她希望新家能在自我雨父母之間尋得平衡,于是請我們為他家設計一套新居所。
業主小故事:
業主是三口之家,平時由于工作原因沒有時間和精力自己采購材料,所以選擇了整包模式的裝修。母親是教師,受中國傳統文化的影響比較喜歡中式風格。但是古典中式又不太適合他們的年齡,女兒喜歡北歐風所以設計師推薦新中式風格+北歐風格。造型簡單色彩要明

原圖分析:
該戶型臥室空間比較規整,餐廳,生活陽臺都足夠大,采光性很好。
不足的地方:
1. 該戶型不足的地方是餐廳比較小
2. 玄關面積不大

平面分析:
1. 廚房面積重新規劃,但是客戶想把冰箱放進廚房,所以廚房門向外擴了一部分,從而擴大廚房空間,同時餐廳面積也足夠用,而且餐廳布局顯得更規整些。
2. 由于客廳面積不大,相對來說采光不是特別好,所以客廳布局比較簡單,除了生活中必備的一些東西,沒有多余的布置。從而使得客廳整體空間更簡潔大氣明亮。

由于業主比較年輕,不太適合古典的中式風格,所以在設計上拋去以前繁瑣的中式造型,用簡潔明快的實木線條代替,從而使得整體空間更簡潔大氣明快。顏色搭配上選用深淺對比色,用彩色的壁紙來過渡調和。由于古典的中式家具顏色過于深,使得整體空間會顯得沉悶,所以家具選擇上用簡潔的造型和明亮的顏色搭配,使得整體空間更活躍。

由于背景墻面積不是很大,設計師沒有做太復雜的造型。用壁紙來陪襯,這樣做出來的效果更簡潔大氣。色彩使整個空間更具層次感。

考慮到整體色彩不易偏暗,所以餐廳采用大面白色墻漆用深色壁紙來點綴,讓整體效果更簡潔,明快。家具采用深色對比色,餐桌用色彩艷麗的原木色來調色,使得整體空間更清新活躍。


臥室以溫馨舒適為主,顏色不宜太暗,要避免使用大面積深色以防止悶重的感覺。

廚房保留了較大的操作空間,格子的花磚與櫥柜的顏色融為一體,溫馨的色彩里多了一抹綠意,讓整體廚房多了一份家的味道。這樣的廚房不顯擁擠,適合夫妻倆一起下廚,做一桌豐盛的美食。

衛生間的深淺搭配看起來很舒服,深色木質浴室柜看起來更有質感,淺色墻磚搭配深色腰線使整體空間更具層次感,坐便后面的背景設計使得整體空間看上去不再單調。整個衛生間以業主的生活習慣為出發點,簡潔大氣并具有功能性。
【 唐山弘藝裝飾】致力于唐山大包裝修,唐山裝修,唐山裝修套餐,唐山家裝公司,唐山別墅設計,唐山裝修效果圖,唐山家裝整裝,唐山家裝設計,上千平米材料展廳,上千款品牌主材供業主挑選,五星設計團隊、金牌項目經理、材料部、質檢部、客戶部、為每位業主保駕護航,體現完美服務,創造舒心家裝!
裝修分期
設計師:姚志杰 現代簡約/140㎡
設計師:程光 其他/156㎡
設計師:邢志超 新古典/99㎡
設計師:邢志超 其他/138㎡
設計師:邢志超 現代簡約/140㎡
設計師:張志鵬 現代簡約/135㎡