湖岸緹香140㎡現代輕奢實景
設計師:姚志杰 現代簡約/140㎡
作者:弘藝裝飾發布時間:2019-05-29
業主基本信息:
房子是三口人居住,家里一個女孩,兩口子對整體風格定位比較簡單,以舒適為主,需要較多的儲物功能,也不喜歡 過多復雜的造型 ,房子是回遷房,已等多年,終于房子下來了,所以更想及早裝修,回到屬于自己的小家,同時又擔心環保問題,所以盡可能的簡潔,輕裝修重裝飾。
業主小故事:
業主是三口之家, 孩子還小,兩口子曾今住過出租房,對家沒有歸屬感,所以現在房子下來了,盡可能的擴大儲物功能,干凈整潔,摒棄華而不實的東西,家里有臺式電腦,次臥室也放筆記本電腦,所以臺式電腦放置的位置比較糾結,主臥空間比較小,最終確定放在主臥陽臺上,雖然空間局促些,但不影響主臥的休息區。

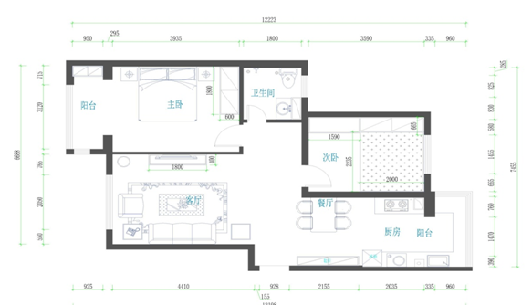
原圖分析:
該戶型空間比較規整,臥室,客廳和陽臺空間足夠用,光采性很好。標準的南北通
不足的地方:
1. 廚房空間比較窄,沒有多少儲物空間和操作臺面,廚房有小陽臺,但是沒有上下水
2. 衛生間空間比較小,沒有放洗衣機的位置,洗衣機下水在廚房里

平面分析:
進門口右手邊有足夠的空間可以放置鞋柜,戶型圖把原本就不大的居住面積根據功能切割成塊,每次接觸到這么幸福的家庭,設計師都希望在有限的空間里給他們一個共融的區域,讓這個被稱作“家”的房子能有一個相融、互動的地方。這一點也正是業主的述求與期望點,所以在方案的改造上將原有的廚房和餐廳及陽臺進行打通,不僅僅是空間布局上的擴展融合還是一種新的生活方式。次臥做了一個榻榻米的設計,榻榻米的儲藏功能非常強大,這樣更能把空間充分利用上。




兒童房選擇了粉嫩的墻面及床品,為孩子提供了一間自由暢想的空間。帶有書柜的書桌節省空間,平時還可以放放孩子的玩具。童年是夢的年紀,淡淡的、淺淺的粉,不驚艷,不浮夸,沒有造作,勾勒的是夢的世界,干凈、純潔。

米白色的墻磚與地面磚搭配,使整個衛生間看起來干凈清爽。由于衛生間比較狹窄,沒有放置洗衣機的位置,洗衣機上下水在廚房里。白色鏡框柜延續了整體北歐格調的簡約清新。

整體櫥柜實用為主,地面、墻面與頂面都以淺色調為主,由于廚房空間比較小,充分利用陽臺空間,擴大儲物和操作臺面,使得整個廚房空間小巧而又精致。為了彌補餐廳的采光,做了開場式廚房,不僅僅是空間布局上的擴展融合還是一種新的生活方式,打破邊界,以前獨立的廚房讓光和人都融進來。
【唐山弘藝裝飾】致力于唐山大包裝修,唐山裝修網,唐山裝修套餐,唐山家裝公司,唐山別墅設計,唐山裝修效果圖,唐山家裝整裝,唐山家裝設計,上千平米材料展廳,上千款品牌主材供業主挑選,五星設計團隊、金牌項目經理、材料部、質檢部、客戶部、為每位業主保駕護航,體現完美服務,創造舒心家裝!
裝修分期
設計師:姚志杰 現代簡約/140㎡
設計師:程光 其他/156㎡
設計師:孫天立 新中式/270㎡
設計師:邢志超 現代簡約/143㎡
設計師:張偉 法式/138㎡
設計師:張志鵬 現代簡約/135㎡