輕法式復古的溫柔暴擊
設計師:張志鵬 法式/135㎡
作者:弘藝裝飾發布時間:2019-05-28
項目名稱:邂逅東方
房子所在地:唐山市路南區國花園
設計風格:中式風格
項目面積:138平米
房屋戶型:三室兩廳一廚兩衛
設計師姓名:季志強
設計公司:北京弘藝裝飾工程有限公司唐山分公司
主要材料:壁紙,拋釉磚,壁紙,石英石,木線,花格等
工程費用:112000
業主信息:業主的老家是縣城的,這是在市里買的第一套房子,平時上班比較忙,兒子又正在上高中,所以沒有太多的時間琢磨和看著裝修這件事情。在房子裝修上,他們一直對中式裝修風格有著執著的喜愛,在以中式風格為主導下,讓這個美麗的家變得沉穩又有韻味兒。
業主小故事:人到中年,站在生命長路的中途,前看后望皆是茫茫。前為漸已年邁的父母擔憂,后為未成年的孩子操心。一個舒適和溫暖的家是他們所向往的和需要的。

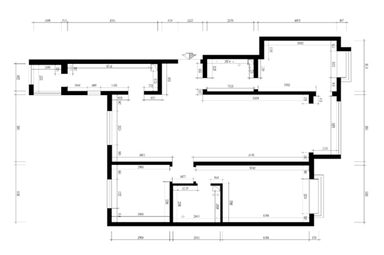
原始量房圖戶型分析:
1、 此戶型為南北通戶型,通風性及好,空間延展性比較好,空間顯得比較大。
2、 空間劃分明確。
3、 不足之處,兩個衛生間劃分不是很明確

平面布置圖分析:根據與業主商議以后主臥衛生間變成公共衛生間與次臥公用。次衛因沒有窗戶,可能會有反味兒的情況,所以衛生間門不在臥室開門。其他空間比較合理沒有做更多的調整。



中式風格在家居布局上講究方正、對稱的布局形式,造型樸素優美,色彩濃厚而成熟。客餐廳的家具色彩上選擇上以莊重的紅黑為主,體現中式文化深沉、厚重的底蘊。中式風格在整體的布局上雖然最求對稱莊重,而在細節上有更傾向于自然情趣、花鳥魚蟲等精細雕刻,取其美好的寓意來表現人們對美好生活的追求。

在臥室的設計上,要追求的是功能與形式的完美統一,優雅獨特,簡潔明快的設計風格。在臥室設計的審美上,追求時尚而不浮躁,莊重典雅而不乏輕松浪漫的感覺。因此,在臥室的設計上,會更多的運用豐富的表現手法,使臥室看似簡單,實則韻味無窮。本案中使用的色調統一,家具猜中莊重的紅黑為主。床頭背景用的木線和花鳥圖案硬包裝飾,營造出了一種莊重而不失典雅,大氣而不缺靈動。

次臥室用了簡約風格,從實用出發輕裝修重裝飾,衣柜做的定制淺色通頂柜子,大面積的用淺色顯得整體空間比較亮堂。床以及床頭柜用了一些重色,顯得整體空間沒有那么飄,感覺比較踏實穩重。頂部沒有過多的用一些復雜的造型,這樣顯得樓層比較高,整體空間大。

衛生間的設計以實用性為主,要注意防水、防滑,地面的瓷磚鋪陳非常重要,稍不注意滑倒就會對身體造成傷害,所以要注意衛生間的地板設計施工。
此衛生間進門右手邊為浴室柜,鏡子背靠北側,鏡子不能直接照坐便,因為從風水上講,馬桶為污穢之物,不能去“照鏡子”。墻面采用300*300的磚上墻,上方用了斜拼使整個空間更加有個性。

這個廚房屬于一字型廚房,首先先說明下一字形的廚房布局是什么,這是指所有的工作區沿一面墻一字形布置,也就是櫥柜上的洗滌槽、操作臺和灶臺三者一般是排列在一條線上,符合清洗、加工、烹飪的順序,這樣就可以讓動線都在同一直線上。廚房陽臺上放的洗衣機和小家電,這樣和烹飪空間單獨分開,這樣既保證空間的獨立性又使得電器空間的干凈整潔性。
裝修分期
設計師:張志鵬 法式/135㎡
設計師:邢志超 現代簡約/124㎡
設計師:張偉 其他/125㎡
設計師:孫天立 新中式/270㎡
設計師:邢志超 法式/130㎡
設計師:邢志超 其他/138㎡